Accueil > Location T3 > Tours (37000) > 817 €CC

Logement étudiant à Tours

Calculer vos aides

Location T3 à Tours - Vide

817€ /mois cc
Ajouter au coup de coeur

Type de location : Location classique - Meublé : NonCalculez votre aide

Disponibilités : 14/03/2026
Disponibilités : 14/03/2026
Visite virtuelle
Logement étudiant T3 à Tours (37000) 1/2
Disponibilités : 14/03/2026
Afficher le numéro de téléphone
Demande d'informations

Demande d'informations

Délai de réponse moyen: 24-48h

Je n'ai pas de garant
Recevoir les annonces similaires par email

Informations et réservations

Délai de réponse moyen: 24-48h

Je n'ai pas de garant
Recevoir les annonces similaires par email

LE LOGEMENT

Type de réservation:Location classique
Type de bien:T3
Ameublement:Vide
Classe énergétique:NC
GES:NC
Colocation possible:Non

DESCRIPTION

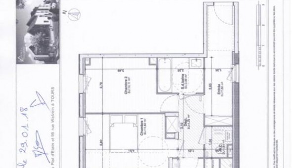
TOURS, dans la résidence "DE BEAUMONT" nous vous proposons un appartement de type T3 de m². Situé au RDC, il comprend : une entrée avec placard, un dégagement avec placard, un séjour/cuisine donnant sur un balcon, deux chambres, une salle de bains et des WC séparés, 1 place de parking couverte n°3 + 1 place de vélo. Eau chaude et chauffage gaz individuel. Eau froide entretien parties communes, entretien ascenseur et espaces verts communs, compris dans les provisions sur charges mensuelles et donnant lieu à une régularisation annuelle. Les honoraires de location TTC (à la charge du locataire) incluent le montant de rédaction des états des lieux facturé pour 198,00 euros TTC, après réalisation lors de l'entrée dans les lieux. Disponible à partir du 01/03/2026. Pour plus de détails sur ce logement, vous pouvez consulter la fiche descriptive de ce bien, sur notre site internet AFEDIM.
Les informations sur les risques auxquels ce bien est exposé sont disponibles sur le site Géorisques :
Référence annonce : 1427215774

BIENS SIMILAIRES
Logement étudiant Location Studio Meublé Tours (37000) Location Studio Meublé Tours (37000) A partir de 550€
Logement étudiant Location Studio Meublé Tours (37000) Location Studio Meublé Tours (37000) A partir de 600€
Logement étudiant Location T2 Meublé Tours (37000) Location T2 Meublé Tours (37000) A partir de 640€
GARANTIES ACCEPTÉES
Visale
Garantie Studapart
Garant physique
ALERTE MAIL
Définissez la location que vous recherchez et nous vous enverrons par email toutes les annonces correspondantes
QUARTIER ET TRANSPORTS (Attention: l'adresse et le quartier de ce bien n'ont pas été communiqués par l'annonceur)
POUR VOUS AIDER
Trouvez la CAF à Tours
Résidences étudiantes à Tours
Trouvez un job à proximité
Financez votre logement
Liste des écoles à proximité
Découvrir Tours
A quelles aides avez-vous droit ?
Simulation APL
Signaler un probleme
BIENS SIMILAIRES
Logement étudiant Location T2 Vide Tours (37000) Location T2 Vide Tours (37000) A partir de 650€
Logement étudiant Location Studio Vide Tours (37000) Location Studio Vide Tours (37000) A partir de 650€
Logement étudiant Location Chambre Meublé Tours (37000) Location Chambre Meublé Tours (37000) A partir de 435€
Besoin d'un logement à Tours ?
Demande d'informations et réservations
Les aides au logement
Financement étudiant
817€ CC