Accueil > Location T3 > Tours (37000) > 795 €CC

Logement étudiant à Tours

Calculer vos aides

Location T3 à Tours - Vide

795€ /mois cc
Ajouter au coup de coeur

Type de location : Location classique - Meublé : NonCalculez votre aide

Disponibilités : 26/11/2025
Disponibilités : 26/11/2025
Visite virtuelle
Logement étudiant T3 à Tours (37000) 1/2
Disponibilités : 26/11/2025
Afficher le numéro de téléphone
Demande d'informations

Demande d'informations

Délai de réponse moyen: 24-48h

Je n'ai pas de garant
Recevoir les annonces similaires par email

Informations et réservations

Délai de réponse moyen: 24-48h

Je n'ai pas de garant
Recevoir les annonces similaires par email

LE LOGEMENT

Type de réservation:Location classique
Type de bien:T3
Ameublement:Vide
Classe énergétique:NC
GES:NC
Colocation possible:Non

DESCRIPTION

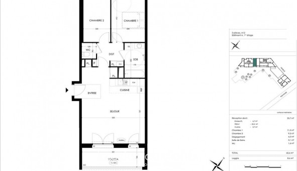
A TOURS, dans la résidence neuve LES IMPRESSIONNISES , nous vous proposons un logement T3 N° A12 de m² sis au 1er étage avec ascenseur. Il se compose : d'une entrée avec placard, un séjour/cuisine donnant sur une loggia de ², un dégagement avec placard desservant deux chambres, un WC et une salle de bains.. Au sous-sol un parking N°15. Eau froide individuelle. (Chauffage et eau chaude en individuels gaz), entretien des parties communes et espaces verts communs, compris dans les provisions sur charges mensuelles et donnant lieu à une régularisation annuelle. Les honoraires de location TTC (à la charge du locataire) incluent le montant de rédaction des états des lieux facturé pour 196 euros TTC, après réalisation lors de l'entrée dans les lieux. Disponibilité prévisionnelle au 17/12/2025. Plus de détails sur notre site AFEDIM. Logement en cours de construction - DPE à venir.
Les informations sur les risques auxquels ce bien est exposé sont disponibles sur le site Géorisques :
Référence annonce : 1426977474

BIENS SIMILAIRES
Logement étudiant Location Studio Meublé Tours (37000) Location Studio Meublé Tours (37000) A partir de 700€
Logement étudiant Location Studio Meublé Tours (37000) Location Studio Meublé Tours (37000) A partir de 550€
Logement étudiant Location Studio Meublé Tours (37000) Location Studio Meublé Tours (37000) A partir de 500€
GARANTIES ACCEPTÉES
Visale
Garantie Studapart
Garant physique
ALERTE MAIL
Définissez la location que vous recherchez et nous vous enverrons par email toutes les annonces correspondantes
QUARTIER ET TRANSPORTS (Attention: l'adresse et le quartier de ce bien n'ont pas été communiqués par l'annonceur)
POUR VOUS AIDER
Trouvez la CAF à Tours
Résidences étudiantes à Tours
Trouvez un job à proximité
Financez votre logement
Liste des écoles à proximité
Découvrir Tours
A quelles aides avez-vous droit ?
Simulation APL
Signaler un probleme
BIENS SIMILAIRES
Logement étudiant Location T3 Vide Tours (37000) Location T3 Vide Tours (37000) A partir de 658€
Logement étudiant Location T2 Vide Tours (37000) Location T2 Vide Tours (37000) A partir de 700€
Logement étudiant Location T2 Vide Tours (37000) Location T2 Vide Tours (37000) A partir de 631€
Besoin d'un logement à Tours ?
Demande d'informations et réservations
Les aides au logement
Financement étudiant
795€ CC