Accueil > Location T3 > Tours (37000) > 755 €CC

Logement étudiant à Tours

Calculer vos aides

Location T3 à Tours - Vide

755€ /mois cc
Ajouter au coup de coeur

Type de location : Location classique - Meublé : NonCalculez votre aide

Disponibilités : 04/11/2025
Disponibilités : 04/11/2025
Visite virtuelle
Logement étudiant T3 à Tours (37000) 1/2
Disponibilités : 04/11/2025
Afficher le numéro de téléphone
Demande d'informations

Demande d'informations

Délai de réponse moyen: 24-48h

Je n'ai pas de garant
Recevoir les annonces similaires par email

Informations et réservations

Délai de réponse moyen: 24-48h

Je n'ai pas de garant
Recevoir les annonces similaires par email

LE LOGEMENT

Type de réservation:Location classique
Type de bien:T3
Ameublement:Vide
Classe énergétique:NC
GES:NC
Colocation possible:Non

DESCRIPTION

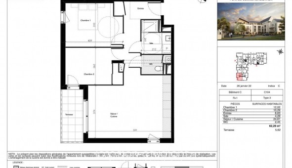
A seulement 1h de Paris en TGV, Tours vous ouvre les portes du Val de Loire inscrit au Patrimoine mondial de l'Humanité. Nous vous proposons dans la résidence neuve DOMAINE SAINT MARTIN, un appartement T3 n°C104 de m². Situé au 1er étage avec ascenseur, il comprend une entrée, un séjour de m² avec cuisine donnant sur une terrasse de m², deux chambres, une salle de bains et un WC séparé. Au sous-sol, un emplacement de stationnement n°PKS60. Chauffage et eau chaude individuels gaz, entretien parties communes, ascenseur et espaces verts communs, compris dans les provisions sur charges mensuelles et donnant lieu à une régularisation annuelle. Les honoraires de location sont facturés directement au locataire par le partenaire pour 498? TTC. Quant aux honoraires de rédaction des états des lieux, ils sont facturés par AFEDIM Gestion pour 186? TTC, après réalisation, lors de l'entrée dans les lieux. Plus de détails sur notre site internet AFEDIM.
Les informations sur les risques auxquels ce bien est exposé sont disponibles sur le site Géorisques :
Référence annonce : 1426924451

BIENS SIMILAIRES
Logement étudiant Location Studio Meublé Tours (37000) Location Studio Meublé Tours (37000) A partir de 465€
Logement étudiant Location T3 Meublé Tours (37000) Location T3 Meublé Tours (37000) A partir de 800€
Logement étudiant Location Studio Meublé Tours (37000) Location Studio Meublé Tours (37000) A partir de 550€
GARANTIES ACCEPTÉES
Visale
Garantie Studapart
Garant physique
ALERTE MAIL
Définissez la location que vous recherchez et nous vous enverrons par email toutes les annonces correspondantes
QUARTIER ET TRANSPORTS (Attention: l'adresse et le quartier de ce bien n'ont pas été communiqués par l'annonceur)
POUR VOUS AIDER
Trouvez la CAF à Tours
Résidences étudiantes à Tours
Trouvez un job à proximité
Financez votre logement
Liste des écoles à proximité
Découvrir Tours
A quelles aides avez-vous droit ?
Simulation APL
Signaler un probleme
BIENS SIMILAIRES
Logement étudiant Location T3 Vide Tours (37000) Location T3 Vide Tours (37000) A partir de 785€
Logement étudiant Location Studio Vide Tours (37000) Location Studio Vide Tours (37000) A partir de 508€
Logement étudiant Location T3 Vide Tours (37000) Location T3 Vide Tours (37000) A partir de 890€
Besoin d'un logement à Tours ?
Demande d'informations et réservations
Les aides au logement
Financement étudiant
755€ CC