Accueil > Location T2 > Tours (37000) > 605 €CC

Logement étudiant à Tours

Calculer vos aides

Location T2 à Tours - Vide

605€ /mois cc
Ajouter au coup de coeur

Type de location : Location classique - Meublé : NonCalculez votre aide

Disponibilités : 27/02/2026
Disponibilités : 27/02/2026
Visite virtuelle
Logement étudiant T2 à Tours (37000) 1/1
Disponibilités : 27/02/2026
Afficher le numéro de téléphone
Demande d'informations

Demande d'informations

Délai de réponse moyen: 24-48h

Je n'ai pas de garant
Recevoir les annonces similaires par email

Informations et réservations

Délai de réponse moyen: 24-48h

Je n'ai pas de garant
Recevoir les annonces similaires par email

LE LOGEMENT

Type de réservation:Location classique
Type de bien:T2
Ameublement:Vide
Classe énergétique:NC
GES:NC
Colocation possible:Non

DESCRIPTION

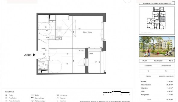
A TOURS, dans la résidence neuve AD'AILE, nous vous proposons ce T2 de ² situé au deuxième étage avec ascenseur. Il se compose d'une entrée, d'une pièce de vie avec cuisine donnant sur une loggia, d'une pièce de rangement, d'une salle d'eau ainsi que d'une chambre. Une place de parking complète le lot. Chauffage et eau chaude individuel gaz. Entretien parties communes, entretien ascenseur, compris dans les provisions sur charges mensuelles et donnant lieu à une régularisation annuelle. Les honoraires de location TTC (à la charge du locataire) incluent le montant de rédaction des états des lieux facturé pour 121 euros TTC, après réalisation lors de l'entrée dans les lieux. Disponibilité prévisionnelle novembre 2025. Plus de détails sur notre site AFEDIM. Logement neuf
Les informations sur les risques auxquels ce bien est exposé sont disponibles sur le site Géorisques :
Référence annonce : 1427179001

BIENS SIMILAIRES
Logement étudiant Location Studio Meublé Tours (37000) Location Studio Meublé Tours (37000) A partir de 499€
Logement étudiant Location Studio Meublé Tours (37000) Location Studio Meublé Tours (37000) A partir de 535€
Logement étudiant Location Studio Meublé Tours (37000) Location Studio Meublé Tours (37000) A partir de 550€
GARANTIES ACCEPTÉES
Visale
Garantie Studapart
Garant physique
ALERTE MAIL
Définissez la location que vous recherchez et nous vous enverrons par email toutes les annonces correspondantes
QUARTIER ET TRANSPORTS (Attention: l'adresse et le quartier de ce bien n'ont pas été communiqués par l'annonceur)
POUR VOUS AIDER
Trouvez la CAF à Tours
Résidences étudiantes à Tours
Trouvez un job à proximité
Financez votre logement
Liste des écoles à proximité
Découvrir Tours
A quelles aides avez-vous droit ?
Simulation APL
Signaler un probleme
BIENS SIMILAIRES
Logement étudiant Location Studio Vide Tours (37000) Location Studio Vide Tours (37000) A partir de 360€
Logement étudiant Location T2 Vide Tours (37000) Location T2 Vide Tours (37000) A partir de 650€
Logement étudiant Location Studio Vide Tours (37000) Location Studio Vide Tours (37000) A partir de 650€
Besoin d'un logement à Tours ?
Demande d'informations et réservations
Les aides au logement
Financement étudiant
605€ CC