Accueil > Location T2 > Caen (14000) > 600 €CC

Logement étudiant à Caen

Calculer vos aides

Location T2 à Caen - Vide

600€ /mois cc
Ajouter au coup de coeur

Type de location : Location classique - Meublé : NonCalculez votre aide

Disponibilités : 21/12/2025
Disponibilités : 21/12/2025
Visite virtuelle
Logement étudiant T2 à Caen (14000) 1/1
Disponibilités : 21/12/2025
Afficher le numéro de téléphone
Demande d'informations

Demande d'informations

Délai de réponse moyen: 24-48h

Je n'ai pas de garant
Recevoir les annonces similaires par email

Informations et réservations

Délai de réponse moyen: 24-48h

Je n'ai pas de garant
Recevoir les annonces similaires par email

LE LOGEMENT

Type de réservation:Location classique
Type de bien:T2
Ameublement:Vide
Classe énergétique:NC
GES:NC
Colocation possible:Non

DESCRIPTION

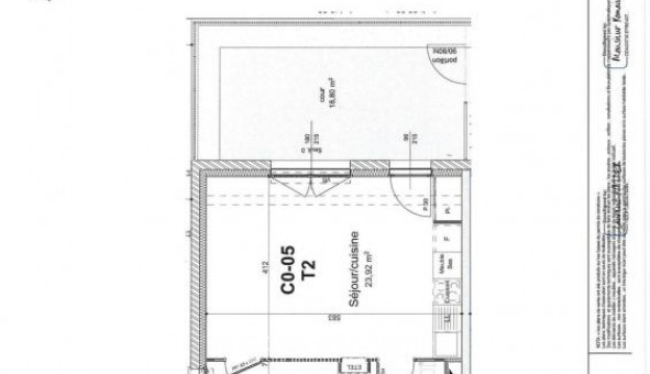
A Caen, découvrez cet appartement T2 de 41,50m² au rez-de-chaussée de la résidence Le Clos Mazarin.
Il offre une pièce de vie avec cuisine de 23,92m², une chambre de 11,24m² et une salle de bain de 6,34m² avec baignoire et meuble vasque.
Vous profiterez également d'une cour extérieure de 18,80m² et d'une place de parking.
L'appartement est équipé d'un chauffage et d'une production d'eau chaude individuelle à gaz.
Les frais d'entretien des parties communes, le local vélo et les espaces verts sont compris dans les provisions sur charges mensuelles.
Les honoraires de location TTC (à la charge du locataire) incluent le montant de rédaction des états des lieux facturé pour 124 euros TTC, après réalisation lors de l'entrée dans les lieux. Plus de détails sur notre site AFEDIM.
Les informations sur les risques auxquels ce bien est exposé sont disponibles sur le site Géorisques :
Référence annonce : 1427035135

BIENS SIMILAIRES
Logement étudiant Location Studio Meublé Caen (14000) Location Studio Meublé Caen (14000) A partir de 670€
Logement étudiant Location T2 Meublé Caen (14000) Location T2 Meublé Caen (14000) A partir de 750€
Logement étudiant Location Studio Meublé Caen (14000) Location Studio Meublé Caen (14000) A partir de 690€
GARANTIES ACCEPTÉES
Visale
Garantie Studapart
Garant physique
ALERTE MAIL
Définissez la location que vous recherchez et nous vous enverrons par email toutes les annonces correspondantes
QUARTIER ET TRANSPORTS (Attention: l'adresse et le quartier de ce bien n'ont pas été communiqués par l'annonceur)
POUR VOUS AIDER
Trouvez la CAF à Caen
Résidences étudiantes à Caen
Trouvez un job à proximité
Financez votre logement
Liste des écoles à proximité
Découvrir Caen
A quelles aides avez-vous droit ?
Simulation APL
Signaler un probleme
BIENS SIMILAIRES
Logement étudiant Location Studio Meublé Caen (14000) Location Studio Meublé Caen (14000) A partir de 650€
Logement étudiant Location Studio Vide Caen (14000) Location Studio Vide Caen (14000) A partir de 605€
Logement étudiant Location T3 Vide Caen (14000) Location T3 Vide Caen (14000) A partir de 900€
Besoin d'un logement à Caen ?
Demande d'informations et réservations
Les aides au logement
Financement étudiant
600€ CC