Accueil > Location T4 > Fuveau (13710) > 1 600 €CC

Logement étudiant à Fuveau

Calculer vos aides

Location T4 à Fuveau - Meublé - 81m²

1 600€ /mois cc
Ajouter au coup de coeur

Type de location : Location classique - Meublé : OuiCalculez votre aide

Disponibilités : 04/03/2026
Disponibilités : 04/03/2026
Visite virtuelle
Logement étudiant T4 à Fuveau (13710) 1/10
Disponibilités : 04/03/2026
Afficher le numéro de téléphone
Demande d'informations

Demande d'informations

Délai de réponse moyen: 24-48h

Je n'ai pas de garant
Recevoir les annonces similaires par email
J'accepte de partager mes infos
Une annonce Studappart

Informations et réservations

Délai de réponse moyen: 24-48h

Je n'ai pas de garant
Recevoir les annonces similaires par email
J'accepte de partager mes infos

LE LOGEMENT

Type de réservation:Location classique
Type de bien:T4
Ameublement:Meublé
Classe énergétique:D (de 151 à 230)
GES:C (de 11 à 20)
Colocation possible:Non

DESCRIPTION



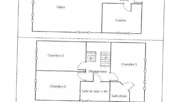
Maison mitoyenne T4 duplex en RDC + 1er étage avec une terrasse avec une vue dégagée et donnant sur le grand jardin de la copropriété
RDC : Entrée, Séjour, Cuisine, WC, placard
Etage : Palier, 3 Chambres avec placards, salle de bain + WC et salle de douche (voir le plan).
Dans une résidence sécurisée avec piscine collective et espaces verts
Commune de Fuveau (La Barque) - Proche de Aix-en-Provence
Bail meublé

Updated on 03/03/2026
Le propriétaire de ce bien utilise Studapart pour louer son logement en toute sécurité.

Comment ça marche '

Vous recevez un email Studapart et cliquez sur le lien de l?annonce.

Vous créez votre compte Studapart et envoyez votre candidature (dossier + message) sans aucun frais.

Si votre profil est retenu, vous pourrez faire une demande de réservation. Les frais Studapart ne sont débités qu?en cas de confirmation de réservation afin de vous garantir une location 100% sécurisée.

Référence annonce : 1427127545

GARANTIES ACCEPTÉES
Garantie Studapart
ALERTE MAIL
Définissez la location que vous recherchez et nous vous enverrons par email toutes les annonces correspondantes
QUARTIER ET TRANSPORTS
POUR VOUS AIDER
Trouvez la CAF à Fuveau
Résidences étudiantes à Fuveau
Trouvez un job à proximité
Financez votre logement
Liste des écoles à proximité
Découvrir Fuveau
A quelles aides avez-vous droit ?
Simulation APL
Signaler un probleme
BIENS SIMILAIRES
Logement étudiant Location Studio Vide Fuveau (13710) Location Studio Vide Fuveau (13710) A partir de 690€
Logement étudiant Location Studio Vide Fuveau (13710) Location Studio Vide Fuveau (13710) A partir de 420€
Logement étudiant Location T2 Vide Fuveau (13710) Location T2 Vide Fuveau (13710) A partir de 790€
Besoin d'un logement à Fuveau ?
Demande d'informations et réservations
Les aides au logement
Financement étudiant
1 600€ CC