Type de logement
Les derniers articles
Les articles par catégorie
Le baromètre
L'indice des loyers
L'argus des prix
Calculer vos aides
Type de location : Location classique - Meublé : Non
Calculez votre aide
1/1
Afficher le numéro de téléphone
Demande d'informations
Informations et réservations
Délai de réponse moyen: 24-48h
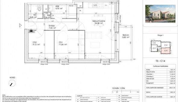
A WATTRELOS, dans la résidence neuve "FIL GREEN", nous vous proposons un appartement T3 de ². Le logement se compose d'une entrée avec placard, une chambre de 11,04m² et 9,13m², ainsi que d'un séjour avec une cuisine donnant sur le balcon de 5,83m²et d'une salle d'eau avec WC séparé. Une place de parking n°60 complète le lot. Chauffage et eau chaude individuel gaz. Entretien parties communes, entretien ascenseur, compris dans les provisions sur charges mensuelles et donnant lieu à une régularisation annuelle. Les honoraires de location TTC (à la charge du locataire) incluent le montant de rédaction des états des lieux facturé pour 177 euros TTC, après réalisation lors de l'entrée dans les lieux. Plus de détails sur notre site AFEDIM. Logement neuf en cours de construction - DPE à venir
Les informations sur les risques auxquels ce bien est exposé sont disponibles sur le site Géorisques :
Référence annonce : 1427110605
Face aux difficultés rencontrées par les jeunes pour se loger, Location-etudiant.fr permet aux étudiants et aux jeunes actifs de trouver leur logement étudiant dans de nombreuses villes comme Paris, Lyon, Marseille, Toulouse, Lille ou Nantes. L'étudiant peut choisir parmi les 5 grands types de logement étudiant: les petites annonces de particuliers à particuliers, sans frais d'agence, les résidences étudiantes privées, les chambres chez l'habitant, la colocation et les cités U. Exclusivement dédié à la location de petites surfaces les particuliers bailleurs peuvent déposer leur annonces de studio, T1, 2 et 3 pièces directement sur le site. Des informations et guides pratiques sont disponibles pour tous les étudiants qui louent un studio ou un 2 pièces.
Immobilier Neuf Toulouse | Liste des Crous | Nos auteurs | Les villes de France | Colocations | Annuaire des agences immobilières | Informations sur les principales villes étudiantes | Liste des groupes de résidences étudiantes | Les caisses d'allocations familiales (CAF) en France | Les écoles et universités en France | Biens Loués | Résidences étudiantes
© METRES CARRES COM - Tous droits réservés - 2026