Accueil > Location T3 > Villefranche sur Saône (69400) > 855 €CC

Logement étudiant à Villefranche sur Saône

Calculer vos aides

Location T3 à Villefranche sur Saône - Vide

855€ /mois cc
Ajouter au coup de coeur

Type de location : Location classique - Meublé : NonCalculez votre aide

Disponibilités : 04/02/2026
Disponibilités : 04/02/2026
Visite virtuelle
Logement étudiant T3 à Villefranche sur Saône (69400) 1/2
Disponibilités : 04/02/2026
Afficher le numéro de téléphone
Demande d'informations

Demande d'informations

Délai de réponse moyen: 24-48h

Je n'ai pas de garant
Recevoir les annonces similaires par email

Informations et réservations

Délai de réponse moyen: 24-48h

Je n'ai pas de garant
Recevoir les annonces similaires par email

LE LOGEMENT

Type de réservation:Location classique
Type de bien:T3
Ameublement:Vide
Classe énergétique:NC
GES:NC
Colocation possible:Non

DESCRIPTION

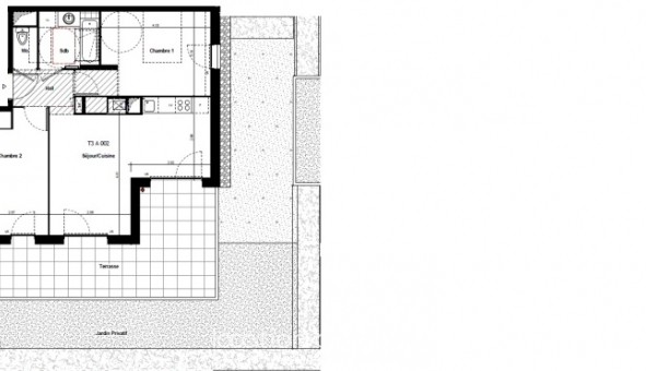
A002 LE ROMEO : DONNANT INTERIEUR DE RESIDENCE RECENTE BBC DE STANDING ARBOREE .AGREABLE T3 DONNANT ENTIEREMENT SUR TERRASSE ET JARDIN DE 47M². Il se compose d'une entrée, d'une belle pièce de vie claire avec cuisine US aménagée (plaques vitro, hotte, four, meubles hauts et bas). 2 chambres en sol parquet dont une avec placard mural aménagé. Salle de bain avec sèche-serviettes. Garage double en sous-sol sécurisé .CHAUFFAGE IND AU GAZ. VISIOPHONE. A PROXIMITE DU CENTRE VILLE ET DES COMMERCES. Consommation d'énergie totale 458 EUR par an (prix moyens des énergies indexés au ).

Les informations sur les risques auxquels ce bien est exposé sont disponibles sur le site Géorisques : www. georisques. gouv. fr
Référence annonce : 1426999742

GARANTIES ACCEPTÉES
Visale
Garantie Studapart
Garant physique
ALERTE MAIL
Définissez la location que vous recherchez et nous vous enverrons par email toutes les annonces correspondantes
QUARTIER ET TRANSPORTS (Attention: l'adresse et le quartier de ce bien n'ont pas été communiqués par l'annonceur)
POUR VOUS AIDER
Trouvez la CAF à Villefranche sur Saône
Résidences étudiantes à Villefranche sur Saône
Trouvez un job à proximité
Financez votre logement
Liste des écoles à proximité
Découvrir Villefranche sur Saône
A quelles aides avez-vous droit ?
Simulation APL
Signaler un probleme
BIENS SIMILAIRES
Logement étudiant Location T3 Vide Villefranche sur Saône (69400) Location T3 Vide Villefranche sur Saône (69400) A partir de 812€
Logement étudiant Location T2 Vide Arnas (69400) Location T2 Vide Arnas (69400) A partir de 440€
Logement étudiant Location T2 Vide Villefranche sur Saône (69400) Location T2 Vide Villefranche sur Saône (69400) A partir de 635€
Besoin d'un logement à Villefranche sur Saône ?
Demande d'informations et réservations
Les aides au logement
Financement étudiant
855€ CC