Accueil > Location T3 > Vernon (27200) > 855 €CC

Logement étudiant à Vernon

Calculer vos aides

Location T3 à Vernon - Vide

855€ /mois cc
Ajouter au coup de coeur

Type de location : Location classique - Meublé : NonCalculez votre aide

Disponibilités : 27/11/2025
Disponibilités : 27/11/2025
Visite virtuelle
Logement étudiant T3 à Vernon (27200) 1/2
Disponibilités : 27/11/2025
Afficher le numéro de téléphone
Demande d'informations

Demande d'informations

Délai de réponse moyen: 24-48h

Je n'ai pas de garant
Recevoir les annonces similaires par email

Informations et réservations

Délai de réponse moyen: 24-48h

Je n'ai pas de garant
Recevoir les annonces similaires par email

LE LOGEMENT

Type de réservation:Location classique
Type de bien:T3
Ameublement:Vide
Classe énergétique:NC
GES:NC
Colocation possible:Non

DESCRIPTION

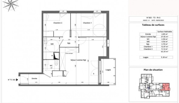
A VERNON - Dans la résidence neuve "LE 104", nous vous proposons un appartement T3 N°303 de ² situé au 3ème étage. Il se compose d'une entrée avec placard, d'une pièce de vie de ² avec cuisine ouverte et donnant sur une loggia de ², de deux chambres de ² et ², d'une salle d'eau et d'un WC séparé. Cet appartement dispose d'une place de stationnement N°18. Chauffage et eau chaude collective. Entretien parties communes, entretien ascenseur, compris dans les provisions sur charges mensuelles et donnant lieu à une régularisation annuelle. Les honoraires de location TTC (à la charge du locataire) incluent le montant de rédaction des états des lieux facturé pour 188 euros TTC, après réalisation lors de l'entrée dans les lieux. Disponible courant décembre 2025. Plus de détails sur notre site AFEDIM.
Les informations sur les risques auxquels ce bien est exposé sont disponibles sur le site Géorisques :
Référence annonce : 1426978133

BIENS SIMILAIRES
Logement étudiant Location T2 Meublé Vernon (27200) Location T2 Meublé Vernon (27200) A partir de 625€
Logement étudiant Location T5 Vide Vernon (27200) Location T5 Vide Vernon (27200) A partir de 1 350€
Logement étudiant Location Studio Meublé Vernon (27200) Location Studio Meublé Vernon (27200) A partir de 620€
GARANTIES ACCEPTÉES
Visale
Garantie Studapart
Garant physique
ALERTE MAIL
Définissez la location que vous recherchez et nous vous enverrons par email toutes les annonces correspondantes
QUARTIER ET TRANSPORTS (Attention: l'adresse et le quartier de ce bien n'ont pas été communiqués par l'annonceur)
POUR VOUS AIDER
Trouvez la CAF à Vernon
Résidences étudiantes à Vernon
Trouvez un job à proximité
Financez votre logement
Liste des écoles à proximité
Découvrir Vernon
A quelles aides avez-vous droit ?
Simulation APL
Signaler un probleme
BIENS SIMILAIRES
Logement étudiant Location T2 Vide Vernon (27200) Location T2 Vide Vernon (27200) A partir de 680€
Logement étudiant Location T2 Vide Vernon (27200) Location T2 Vide Vernon (27200) A partir de 643€
Logement étudiant Location T2 Vide Vernon (27200) Location T2 Vide Vernon (27200) A partir de 900€
Besoin d'un logement à Vernon ?
Demande d'informations et réservations
Les aides au logement
Financement étudiant
855€ CC