Accueil > Location T3 > Vaulx en Velin (69120) > 915 €CC

Logement étudiant à Vaulx en Velin

Calculer vos aides

Location T3 à Vaulx en Velin - Vide

915€ /mois cc
Ajouter au coup de coeur

Type de location : Location classique - Meublé : NonCalculez votre aide

Disponibilités : 02/12/2025
Disponibilités : 02/12/2025
Visite virtuelle
Logement étudiant T3 à Vaulx en Velin (69120) 1/2
Disponibilités : 02/12/2025
Afficher le numéro de téléphone
Demande d'informations

Demande d'informations

Délai de réponse moyen: 24-48h

Je n'ai pas de garant
Recevoir les annonces similaires par email

Informations et réservations

Délai de réponse moyen: 24-48h

Je n'ai pas de garant
Recevoir les annonces similaires par email

LE LOGEMENT

Type de réservation:Location classique
Type de bien:T3
Ameublement:Vide
Classe énergétique:NC
GES:NC
Colocation possible:Non

DESCRIPTION

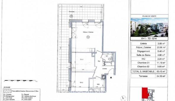
VAULX EN VELIN. Dans la résidence JARDIN GABRIEL, à proximité des services, commerces et transports. Vous est proposé un appartement T3 n°E14 de 60m² sis au 1er étage avec ascenseur. Il se compose d'une pièce de vie avec espace cuisine équipée d'une hotte, de plaques de cuisson à induction et de placards aménagés donnant sur une grande terrasse, de deux chambres et d'une salle de bain avec WC séparé. Chauffage et eau chaude collectifs (urbain). Un garage n°70 est également à disposition. Eau froide, entretien parties communes, entretien ascenseur et espaces verts communs, compris dans les provisions sur charges mensuelles et donnant lieu à une régularisation annuelle. Les honoraires de location TTC (à la charge du locataire) incluent le montant de rédaction des états des lieux facturé pour 110 euros TTC, après réalisation lors de l'entrée dans les lieux.
Logement disponible à compter du 18/07/2025. Pour plus d'informations, vous pouvez consulter la fiche descriptive de ce bien, sur votre site internet AFEDIM
Les informations sur les risques auxquels ce bien est exposé sont disponibles sur le site Géorisques :
Référence annonce : 1426980614

GARANTIES ACCEPTÉES
Visale
Garantie Studapart
Garant physique
ALERTE MAIL
Définissez la location que vous recherchez et nous vous enverrons par email toutes les annonces correspondantes
QUARTIER ET TRANSPORTS (Attention: l'adresse et le quartier de ce bien n'ont pas été communiqués par l'annonceur)
POUR VOUS AIDER
Trouvez la CAF à Vaulx en Velin
Résidences étudiantes à Vaulx en Velin
Trouvez un job à proximité
Financez votre logement
Liste des écoles à proximité
Découvrir Vaulx en Velin
A quelles aides avez-vous droit ?
Simulation APL
Signaler un probleme
BIENS SIMILAIRES
Logement étudiant Location T2 Vide Vaulx en Velin (69120) Location T2 Vide Vaulx en Velin (69120) A partir de 750€
Logement étudiant Location T4 Vide Vaulx en Velin (69120) Location T4 Vide Vaulx en Velin (69120) A partir de 525€
Logement étudiant Location Studio Vide Vaulx en Velin (69120) Location Studio Vide Vaulx en Velin (69120) A partir de 540€
Besoin d'un logement à Vaulx en Velin ?
Demande d'informations et réservations
Les aides au logement
Financement étudiant
915€ CC