Accueil > Location T3 > Tourrettes sur Loup (06140) > 900 €CC

Logement étudiant à Tourrettes sur Loup

Calculer vos aides

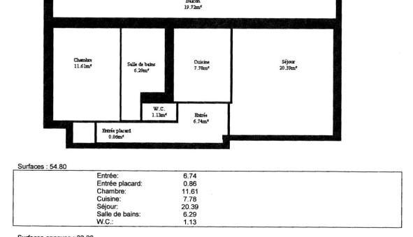
Location T3 à Tourrettes sur Loup - Vide - 60m²

900€ /mois cc
Ajouter au coup de coeur

Type de location : Location classique - Meublé : NonCalculez votre aide

Disponibilités : 18/02/2026
Disponibilités : 18/02/2026
Visite virtuelle
Logement étudiant T3 à Tourrettes sur Loup (06140) 1/1
Disponibilités : 18/02/2026
Afficher le numéro de téléphone
Demande d'informations

Demande d'informations

Délai de réponse moyen: 24-48h

Je n'ai pas de garant
Recevoir les annonces similaires par email
Une annonce Logic-Immo

Informations et réservations

Délai de réponse moyen: 24-48h

Je n'ai pas de garant
Recevoir les annonces similaires par email

LE LOGEMENT

Type de réservation:Location classique
Type de bien:T3
Ameublement:Vide
Classe énergétique:NC
GES:NC
Colocation possible:Non

DESCRIPTION

A louer a l'annee Appartement Duplex 3 pieces Vide Tourrettes sur Loup Joli appartement duplex de village, vide de 3 pieces, vue degagee, apercu mer, compose d'un sejour, une cuisine ouverte amenagee, deux chambres, une salle de douches avec WC et de nombreux rangements. Disponible
Référence annonce : 1423827039

GARANTIES ACCEPTÉES
Visale
Garantie Studapart
Garant physique
ALERTE MAIL
Définissez la location que vous recherchez et nous vous enverrons par email toutes les annonces correspondantes
QUARTIER ET TRANSPORTS (Attention: l'adresse et le quartier de ce bien n'ont pas été communiqués par l'annonceur)
POUR VOUS AIDER
Trouvez la CAF à Tourrettes sur Loup
Résidences étudiantes à Tourrettes sur Loup
Trouvez un job à proximité
Financez votre logement
Découvrir Tourrettes sur Loup
A quelles aides avez-vous droit ?
Simulation APL
Signaler un probleme
BIENS SIMILAIRES
Logement étudiant Location Studio Meublé Vence (06140) Location Studio Meublé Vence (06140) A partir de 800€
Logement étudiant Location T2 Vide Coursegoules (06140) Location T2 Vide Coursegoules (06140) A partir de 850€
Logement étudiant Location T3 Vide Coursegoules (06140) Location T3 Vide Coursegoules (06140) A partir de 1 400€
Besoin d'un logement à Tourrettes sur Loup ?
Demande d'informations et réservations
Les aides au logement
Financement étudiant
900€ CC