Accueil > Location T3 > Strasbourg (67000) > 920 €CC

Logement étudiant à Strasbourg

Calculer vos aides

Location T3 à Strasbourg - Vide

920€ /mois cc
Ajouter au coup de coeur

Type de location : Location classique - Meublé : NonCalculez votre aide

Disponibilités : 25/04/2026
Disponibilités : 25/04/2026
Visite virtuelle
Logement étudiant T3 à Strasbourg (67000) 1/2
Disponibilités : 25/04/2026
Afficher le numéro de téléphone
Demande d'informations

Demande d'informations

Délai de réponse moyen: 24-48h

Je n'ai pas de garant
Recevoir les annonces similaires par email

Informations et réservations

Délai de réponse moyen: 24-48h

Je n'ai pas de garant
Recevoir les annonces similaires par email

LE LOGEMENT

Type de réservation:Location classique
Type de bien:T3
Ameublement:Vide
Classe énergétique:NC
GES:NC
Colocation possible:Non

DESCRIPTION

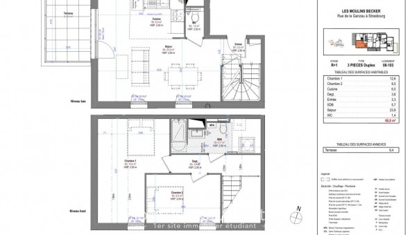
A STRASBOURG, dans la résidence LES MOULINS BECKER, nous vous proposons un logement T3 DUPLEX N° 08-103 de 66 m² sis au 1er étage avec ascenseur. Il se compose, d'une entrée, un séjour de 23.9 m² donnant sur une terrasse de 9.4 m², une cuisine de 6 m², deux chambres à l'étage, une salle d'eau avec douche, meuble vasque et WC séparés. Chauffage et eau chaude en collectif bois/gaz, eau froide, entretien des parties communes et espaces verts communs, compris dans les provisions sur charges mensuelles et donnant lieu à une régularisation annuelle. Les honoraires de location TTC (à la charge du locataire) incluent le montant de rédaction des états des lieux facturé pour 198 euros TTC, après réalisation lors de l'entrée dans les lieux. Plus de détails sur notre site AFEDIM.
Les informations sur les risques auxquels ce bien est exposé sont disponibles sur le site Géorisques :
Référence annonce : 1427306246

BIENS SIMILAIRES
Logement étudiant Location Studio Meublé Strasbourg (67000) Location Studio Meublé Strasbourg (67000) A partir de 600€
Logement étudiant Location T4 Vide Strasbourg (67000) Location T4 Vide Strasbourg (67000) A partir de 990€
Logement étudiant Location T2 Vide Strasbourg (67000) Location T2 Vide Strasbourg (67000) A partir de 720€
GARANTIES ACCEPTÉES
Visale
Garantie Studapart
Garant physique
ALERTE MAIL
Définissez la location que vous recherchez et nous vous enverrons par email toutes les annonces correspondantes
QUARTIER ET TRANSPORTS (Attention: l'adresse et le quartier de ce bien n'ont pas été communiqués par l'annonceur)
POUR VOUS AIDER
Trouvez la CAF à Strasbourg
Résidences étudiantes à Strasbourg
Trouvez un job à proximité
Financez votre logement
Liste des écoles à proximité
Découvrir Strasbourg
A quelles aides avez-vous droit ?
Simulation APL
Signaler un probleme
BIENS SIMILAIRES
Logement étudiant Location T5 Vide Strasbourg (67000) Location T5 Vide Strasbourg (67000) A partir de 3 250€
Logement étudiant Location T3 Vide Strasbourg (67000) Location T3 Vide Strasbourg (67000) A partir de 795€
Logement étudiant Location Studio Vide Strasbourg (67000) Location Studio Vide Strasbourg (67000) A partir de 463€
Besoin d'un logement à Strasbourg ?
Demande d'informations et réservations
Les aides au logement
Financement étudiant
920€ CC