Accueil > Location T3 > Sète (34200) > 747 €CC

Logement étudiant à Sète

Calculer vos aides

Location T3 à Sète - Vide

747€ /mois cc
Ajouter au coup de coeur

Type de location : Location classique - Meublé : NonCalculez votre aide

Disponibilités : 22/01/2026
Disponibilités : 22/01/2026
Visite virtuelle
Logement étudiant T3 à Sète (34200) 1/2
Disponibilités : 22/01/2026
Afficher le numéro de téléphone
Demande d'informations

Demande d'informations

Délai de réponse moyen: 24-48h

Je n'ai pas de garant
Recevoir les annonces similaires par email

Informations et réservations

Délai de réponse moyen: 24-48h

Je n'ai pas de garant
Recevoir les annonces similaires par email

LE LOGEMENT

Type de réservation:Location classique
Type de bien:T3
Ameublement:Vide
Classe énergétique:NC
GES:NC
Colocation possible:Non

DESCRIPTION

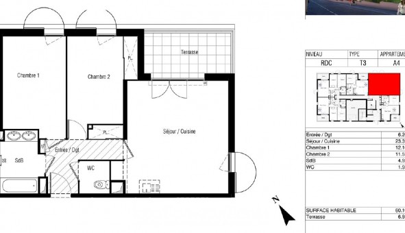
SETE, dans la résidence LES JARDINS DU CARMEL dans le bâtiment A, que nous vous proposons un appartement T3 (A4), d'une superficie de 60 m² situé au RDC. Il se compose d'une entrée avec placard, d'un séjour-cuisine (aménagée et équipée) de 23 m² donnant sur une terrasse de m², d'une salle de bain, WC séparé et deux chambres. Un emplacement de parking n°9 est également à votre disposition. Chauffage individuel électrique. Eau froide, eau chaude, entretien parties communes, espaces verts communs, compris dans les provisions sur charges mensuelles et donnant lieu à une régularisation annuelle. Les honoraires de location TTC (à la charge du locataire) incluent le montant de rédaction des états des lieux facturé pour 180 euros TTC, après réalisation lors de l'entrée dans les lieux. Disponible le 14/11/2025. Pour plus de détails sur ce logement, vous pouvez consulter la fiche descriptive de ce bien, sur votre site internet AFEDIM
Les informations sur les risques auxquels ce bien est exposé sont disponibles sur le site Géorisques :
Référence annonce : 1427096731

BIENS SIMILAIRES
Logement étudiant Location T2 Meublé Sète (34200) Location T2 Meublé Sète (34200) A partir de 530€
Logement étudiant Location T2 Meublé Sète (34200) Location T2 Meublé Sète (34200) A partir de 680€
Logement étudiant Location T2 Meublé Sète (34200) Location T2 Meublé Sète (34200) A partir de 690€
GARANTIES ACCEPTÉES
Visale
Garantie Studapart
Garant physique
ALERTE MAIL
Définissez la location que vous recherchez et nous vous enverrons par email toutes les annonces correspondantes
QUARTIER ET TRANSPORTS (Attention: l'adresse et le quartier de ce bien n'ont pas été communiqués par l'annonceur)
POUR VOUS AIDER
Trouvez la CAF à Sète
Résidences étudiantes à Sète
Trouvez un job à proximité
Financez votre logement
Liste des écoles à proximité
Découvrir Sète
A quelles aides avez-vous droit ?
Simulation APL
Signaler un probleme
BIENS SIMILAIRES
Logement étudiant Location Studio Vide Sète (34200) Location Studio Vide Sète (34200) A partir de 380€
Logement étudiant Location T2 Vide Sète (34200) Location T2 Vide Sète (34200) A partir de 446€
Logement étudiant Location T2 Vide Sète (34200) Location T2 Vide Sète (34200) A partir de 650€
Besoin d'un logement à Sète ?
Demande d'informations et réservations
Les aides au logement
Financement étudiant
747€ CC