Accueil > Location T3 > Sérignan (34410) > 774 €CC

Logement étudiant à Sérignan

Calculer vos aides

Location T3 à Sérignan - Vide

774€ /mois cc
Ajouter au coup de coeur

Type de location : Location classique - Meublé : NonCalculez votre aide

Disponibilités : 14/04/2026
Disponibilités : 14/04/2026
Visite virtuelle
Logement étudiant T3 à Sérignan (34410) 1/2
Disponibilités : 14/04/2026
Afficher le numéro de téléphone
Demande d'informations

Demande d'informations

Délai de réponse moyen: 24-48h

Je n'ai pas de garant
Recevoir les annonces similaires par email

Informations et réservations

Délai de réponse moyen: 24-48h

Je n'ai pas de garant
Recevoir les annonces similaires par email

LE LOGEMENT

Type de réservation:Location classique
Type de bien:T3
Ameublement:Vide
Classe énergétique:NC
GES:NC
Colocation possible:Non

DESCRIPTION

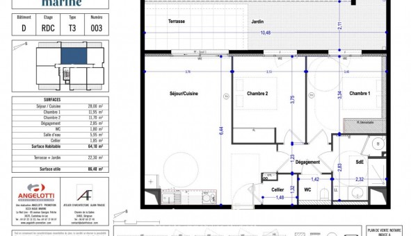
A SERIGNAN, dans la résidence récente DOUCEUR MARINE, nous vous proposons un appartement T3 n°D003 de ² au rez-de-chaussée du bâtiment D. Il comprend un séjour cuisine de 28m² donnant sur une terrasse de 22m², deux chambres avec placard, un cellier, une salle d'eau et un WC. Au rez-de-chaussée un emplacement de stationnement n°34. Chauffage et eau chaude individuels électriques. Entretien parties communes et espaces verts communs, compris dans les provisions sur charges mensuelles et donnant lieu à une régularisation annuelle. Les honoraires de location 840 ? TTC (à la charge du locataire) incluent le montant de rédaction des états des lieux facturé pour 194 ? TTC, après réalisation lors de l'entrée dans les lieux. Pour plus de détails sur ce logement, vous pouvez consulter la fiche descriptive de ce bien, sur notre site internet AFEDIM.
Les informations sur les risques auxquels ce bien est exposé sont disponibles sur le site Géorisques :
Référence annonce : 1427278050

GARANTIES ACCEPTÉES
Visale
Garantie Studapart
Garant physique
ALERTE MAIL
Définissez la location que vous recherchez et nous vous enverrons par email toutes les annonces correspondantes
QUARTIER ET TRANSPORTS (Attention: l'adresse et le quartier de ce bien n'ont pas été communiqués par l'annonceur)
POUR VOUS AIDER
Trouvez la CAF à Sérignan
Résidences étudiantes à Sérignan
Trouvez un job à proximité
Financez votre logement
Liste des écoles à proximité
Découvrir Sérignan
A quelles aides avez-vous droit ?
Simulation APL
Signaler un probleme
BIENS SIMILAIRES
Logement étudiant Location T3 Vide Sauvian (34410) Location T3 Vide Sauvian (34410) A partir de 775€
Logement étudiant Location T4 Vide Sauvian (34410) Location T4 Vide Sauvian (34410) A partir de 1 210€
Logement étudiant Location T4 Vide Sauvian (34410) Location T4 Vide Sauvian (34410) A partir de 1 115€
Besoin d'un logement à Sérignan ?
Demande d'informations et réservations
Les aides au logement
Financement étudiant
774€ CC