Accueil > Location T3 > Sennecey lès Dijon (21800) > 740 €CC

Logement étudiant à Sennecey lès Dijon

Calculer vos aides

Location T3 à Sennecey lès Dijon - Vide

740€ /mois cc
Ajouter au coup de coeur

Type de location : Location classique - Meublé : NonCalculez votre aide

Disponibilités : 14/10/2025
Disponibilités : 14/10/2025
Visite virtuelle
Logement étudiant T3 à Sennecey lès Dijon (21800) 1/2
Disponibilités : 14/10/2025
Afficher le numéro de téléphone
Demande d'informations

Demande d'informations

Délai de réponse moyen: 24-48h

Je n'ai pas de garant
Recevoir les annonces similaires par email

Informations et réservations

Délai de réponse moyen: 24-48h

Je n'ai pas de garant
Recevoir les annonces similaires par email

LE LOGEMENT

Type de réservation:Location classique
Type de bien:T3
Ameublement:Vide
Classe énergétique:NC
GES:NC
Colocation possible:Non

DESCRIPTION

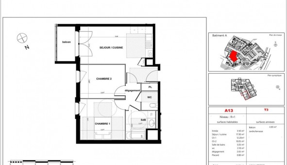
SENNECEY LES DIJON. Dans la résidence neuve REGENT'S PARK, nous vous proposons un appartement T3 n°A13 de ², situé au 1er étage, il est composé d'un séjour-cuisine de ², d'une salle de bains de ², de deux chambres de ² et ² et d'un balcon de 4m². A l'extérieur un parking double n°39 et 42. Chauffage et eau chaude individuelle. Eau froide, entretien parties communes et espaces verts communs compris dans les provisions sur charges mensuelles et donnant lieu à une régularisation annuelle. Les honoraires de location 596 euros TTC (à la charge du locataire) incluent le montant de rédaction des états des lieux facturé pour 162 euros TTC, après réalisation lors de l'entrée dans les lieux. Pour plus de détails sur ce logement, vous pouvez consulter la fiche descriptive de ce bien, sur notre site internet AFEDIM. Disponibilité courant août. Appartement neuf en cours de construction - DPE en attente.
Les informations sur les risques auxquels ce bien est exposé sont disponibles sur le site Géorisques :
Référence annonce : 1426874147

GARANTIES ACCEPTÉES
Visale
Garantie Studapart
Garant physique
ALERTE MAIL
Définissez la location que vous recherchez et nous vous enverrons par email toutes les annonces correspondantes
QUARTIER ET TRANSPORTS (Attention: l'adresse et le quartier de ce bien n'ont pas été communiqués par l'annonceur)
POUR VOUS AIDER
Trouvez la CAF à Sennecey lès Dijon
Résidences étudiantes à Sennecey lès Dijon
Trouvez un job à proximité
Financez votre logement
Découvrir Sennecey lès Dijon
A quelles aides avez-vous droit ?
Simulation APL
Signaler un probleme
BIENS SIMILAIRES
Logement étudiant Location T3 Vide Chevigny Saint Sauveur (21800) Location T3 Vide Chevigny Saint Sauveur (21800) A partir de 663€
Logement étudiant Location Studio Vide Chevigny Saint Sauveur (21800) Location Studio Vide Chevigny Saint Sauveur (21800) A partir de 360€
Logement étudiant Location T2 Vide Chevigny Saint Sauveur (21800) Location T2 Vide Chevigny Saint Sauveur (21800) A partir de 632€
Besoin d'un logement à Sennecey lès Dijon ?
Demande d'informations et réservations
Les aides au logement
Financement étudiant
740€ CC