Accueil > Location T3 > Sainte Ruffine (57130) > 893 €CC

Logement étudiant à Sainte Ruffine

Calculer vos aides

Location T3 à Sainte Ruffine - Vide

893€ /mois cc
Ajouter au coup de coeur

Type de location : Location classique - Meublé : NonCalculez votre aide

Disponibilités : 04/04/2026
Disponibilités : 04/04/2026
Visite virtuelle
Logement étudiant T3 à Sainte Ruffine (57130) 1/2
Disponibilités : 04/04/2026
Afficher le numéro de téléphone
Demande d'informations

Demande d'informations

Délai de réponse moyen: 24-48h

Je n'ai pas de garant
Recevoir les annonces similaires par email

Informations et réservations

Délai de réponse moyen: 24-48h

Je n'ai pas de garant
Recevoir les annonces similaires par email

LE LOGEMENT

Type de réservation:Location classique
Type de bien:T3
Ameublement:Vide
Classe énergétique:NC
GES:NC
Colocation possible:Non

DESCRIPTION

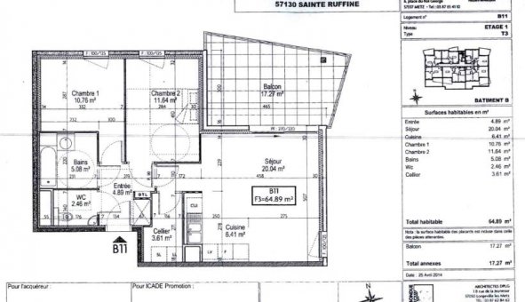
A Sainte Ruffine, dans un environnement serein et proche des commodités, dans la résidence neuve "L'Eden", T3 de 64,89m² situé au 1er étage avec ascenseur du bâtiment B. Il se compose d'une entrée, d'une pièce à vivre de ² avec cuisine aménagée et équipée (plaques électriques, four, hotte) donnant sur un balcon de ², deux chambres, une salle de bain et d'un WC séparé. A l'extérieur, un parking et d'un garage. Eau froide individuelle. Chauffage et eau chaude collectif. Entretien parties communes, entretien ascenseur et espaces verts communs, compris dans les provisions sur charges mensuelles et donnant lieu à une régularisation annuelle. Les honoraires de location TTC (à la charge du locataire) incluent le montant de rédaction des états des lieux facturé pour 196 euros TTC, après réalisation lors de l'entrée dans les lieux. Pour plus de détails sur ce logement, vous pouvez consulter la fiche descriptive de ce bien, sur votre site internet AFEDIM.
Pinel
Disponible le 26/05/2026
Les informations sur les risques auxquels ce bien est exposé sont disponibles sur le site Géorisques :
Référence annonce : 1427259587

GARANTIES ACCEPTÉES
Visale
Garantie Studapart
Garant physique
ALERTE MAIL
Définissez la location que vous recherchez et nous vous enverrons par email toutes les annonces correspondantes
QUARTIER ET TRANSPORTS (Attention: l'adresse et le quartier de ce bien n'ont pas été communiqués par l'annonceur)
POUR VOUS AIDER
Trouvez la CAF à Sainte Ruffine
Résidences étudiantes à Sainte Ruffine
Trouvez un job à proximité
Financez votre logement
Découvrir Sainte Ruffine
A quelles aides avez-vous droit ?
Simulation APL
Signaler un probleme
BIENS SIMILAIRES
Logement étudiant Location T2 Vide Ars sur Moselle (57130) Location T2 Vide Ars sur Moselle (57130) A partir de 755€
Logement étudiant Location T2 Vide Sainte Ruffine (57130) Location T2 Vide Sainte Ruffine (57130) A partir de 636€
Logement étudiant Location T3 Vide Ancy sur Moselle (57130) Location T3 Vide Ancy sur Moselle (57130) A partir de 660€
Besoin d'un logement à Sainte Ruffine ?
Demande d'informations et réservations
Les aides au logement
Financement étudiant
893€ CC