Accueil > Location T3 > Saint Julien lès Metz (57070) > 725 €CC

Logement étudiant à Saint Julien lès Metz

Calculer vos aides

Location T3 à Saint Julien lès Metz - Vide

725€ /mois cc
Ajouter au coup de coeur

Type de location : Location classique - Meublé : NonCalculez votre aide

Disponibilités : 19/01/2026
Disponibilités : 19/01/2026
Visite virtuelle
Logement étudiant T3 à Saint Julien lès Metz (57070) 1/2
Disponibilités : 19/01/2026
Afficher le numéro de téléphone
Demande d'informations

Demande d'informations

Délai de réponse moyen: 24-48h

Je n'ai pas de garant
Recevoir les annonces similaires par email

Informations et réservations

Délai de réponse moyen: 24-48h

Je n'ai pas de garant
Recevoir les annonces similaires par email

LE LOGEMENT

Type de réservation:Location classique
Type de bien:T3
Ameublement:Vide
Classe énergétique:NC
GES:NC
Colocation possible:Non

DESCRIPTION

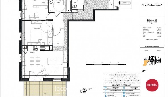
A SAINT JULIEN LES METZ, proche du centre de Metz, dans la résidence Belvedère, appartement T3 n°225 de ² au 2ème étage du bâtiment B2. Il se compose d'une entrée, d'une pièce à vivre avec cuisine ouverte donnant sur balcon de ², de deux chambres, d'un dégagement avec grand placard, d'une salle de bain et d'un WC indépendant. Au sous sol, un garage n°248. Chauffage et eau chaude individuels gaz. Entretien parties communes et espaces verts communs, compris dans les provisions sur charges mensuelles et donnant lieu à une régularisation annuelle.
Les honoraires de location de 740 euros TTC (à la charge du locataire) incluent le montant de rédaction des états des lieux facturé pour 202 euros TTC, après réalisation lors de l'entrée dans les lieux. Plus de détails sur notre site AFEDIM.
Les informations sur les risques auxquels ce bien est exposé sont disponibles sur le site Géorisques :
Référence annonce : 1427088382

GARANTIES ACCEPTÉES
Visale
Garantie Studapart
Garant physique
ALERTE MAIL
Définissez la location que vous recherchez et nous vous enverrons par email toutes les annonces correspondantes
QUARTIER ET TRANSPORTS (Attention: l'adresse et le quartier de ce bien n'ont pas été communiqués par l'annonceur)
POUR VOUS AIDER
Trouvez la CAF à Saint Julien lès Metz
Résidences étudiantes à Saint Julien lès Metz
Trouvez un job à proximité
Financez votre logement
Découvrir Saint Julien lès Metz
A quelles aides avez-vous droit ?
Simulation APL
Signaler un probleme
BIENS SIMILAIRES
Logement étudiant Location T4 Vide Chieulles (57070) Location T4 Vide Chieulles (57070) A partir de 1 690€
Logement étudiant Location Studio Vide Chieulles (57070) Location Studio Vide Chieulles (57070) A partir de 525€
Logement étudiant Location T3 Vide Chieulles (57070) Location T3 Vide Chieulles (57070) A partir de 910€
Besoin d'un logement à Saint Julien lès Metz ?
Demande d'informations et réservations
Les aides au logement
Financement étudiant
725€ CC