Accueil > Location T3 > Saint Denis en Val (45560) > 704 €CC

Logement étudiant à Saint Denis en Val

Calculer vos aides

Location T3 à Saint Denis en Val - Vide

704€ /mois cc
Ajouter au coup de coeur

Type de location : Location classique - Meublé : NonCalculez votre aide

Disponibilités : 21/12/2025
Disponibilités : 21/12/2025
Visite virtuelle
Logement étudiant T3 à Saint Denis en Val (45560) 1/2
Disponibilités : 21/12/2025
Afficher le numéro de téléphone
Demande d'informations

Demande d'informations

Délai de réponse moyen: 24-48h

Je n'ai pas de garant
Recevoir les annonces similaires par email

Informations et réservations

Délai de réponse moyen: 24-48h

Je n'ai pas de garant
Recevoir les annonces similaires par email

LE LOGEMENT

Type de réservation:Location classique
Type de bien:T3
Ameublement:Vide
Classe énergétique:NC
GES:NC
Colocation possible:Non

DESCRIPTION

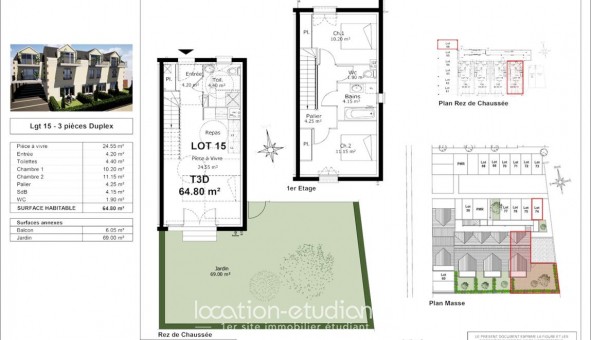
A ST DENIS EN VAL, aux portes d'Orléans, dans la résidence DU CANAL, nous vous proposons un T3 neuf duplex (lot 15) de m², comprenant au rez-de-chaussée : une entrée avec placard, un séjour ouvert sur une cuisine aménagée et équipée de ² donnant sur un jardin de 69m² et des WC. A l'étage : deux chambres avec placard de ² et ², un palier, une salle de bain, un WC et un balcon. Deux places de parking n°66-74. Production d'eau chaude et chauffage individuel au gaz. Entretien parties communes, compris dans les provisions sur charges mensuelles et donnant lieu à une régularisation annuelle. Le montant des honoraires de location est facturé directement au locataire TTC. Quant au montant des honoraires de rédaction des états des lieux, il est facturé par AFEDIM Gestion Immobilière pour 194 euros TTC, après réalisation, lors de l'entrée dans les lieux. Pour plus de détails, consultez la fiche descriptive, sur notre site internet AFEDIM. Disponible au 18/01/2026
Les informations sur les risques auxquels ce bien est exposé sont disponibles sur le site Géorisques :
Référence annonce : 1427035196

GARANTIES ACCEPTÉES
Visale
Garantie Studapart
Garant physique
ALERTE MAIL
Définissez la location que vous recherchez et nous vous enverrons par email toutes les annonces correspondantes
QUARTIER ET TRANSPORTS (Attention: l'adresse et le quartier de ce bien n'ont pas été communiqués par l'annonceur)
POUR VOUS AIDER
Trouvez la CAF à Saint Denis en Val
Résidences étudiantes à Saint Denis en Val
Trouvez un job à proximité
Financez votre logement
Liste des écoles à proximité
Découvrir Saint Denis en Val
A quelles aides avez-vous droit ?
Simulation APL
Signaler un probleme
BIENS SIMILAIRES
Logement étudiant Location T3 Vide Saint Denis en Val (45560) Location T3 Vide Saint Denis en Val (45560) A partir de 633€
Logement étudiant Location T4 Vide Saint Denis en Val (45560) Location T4 Vide Saint Denis en Val (45560) A partir de 1 250€
Logement étudiant Location Studio Vide Saint Denis en Val (45560) Location Studio Vide Saint Denis en Val (45560) A partir de 514€
Besoin d'un logement à Saint Denis en Val ?
Demande d'informations et réservations
Les aides au logement
Financement étudiant
704€ CC