Accueil > Location T3 > Rognes (13840) > 1 161 €CC

Logement étudiant à Rognes

Calculer vos aides

Location T3 à Rognes - Vide

1 161€ /mois cc
Ajouter au coup de coeur

Type de location : Location classique - Meublé : NonCalculez votre aide

Disponibilités : 15/02/2026
Disponibilités : 15/02/2026
Visite virtuelle
Logement étudiant T3 à Rognes (13840) 1/2
Disponibilités : 15/02/2026
Afficher le numéro de téléphone
Demande d'informations

Demande d'informations

Délai de réponse moyen: 24-48h

Je n'ai pas de garant
Recevoir les annonces similaires par email

Informations et réservations

Délai de réponse moyen: 24-48h

Je n'ai pas de garant
Recevoir les annonces similaires par email

LE LOGEMENT

Type de réservation:Location classique
Type de bien:T3
Ameublement:Vide
Classe énergétique:NC
GES:NC
Colocation possible:Non

DESCRIPTION

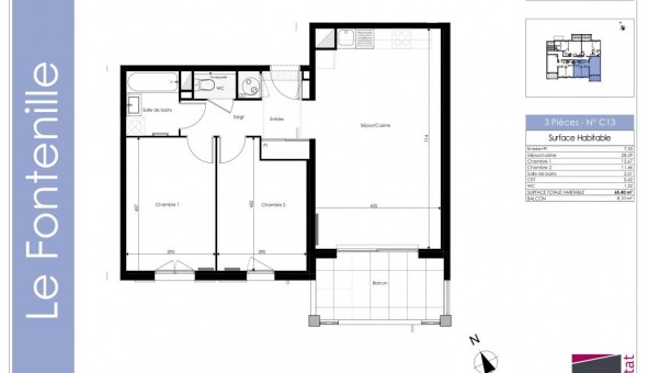
Découvrez cet appartement de type 3 situé à Rognes, au sein de la résidence NEUVE LE FONTENILLE. Situé au 1er étage, cet appartement de ² offre une surface habitable confortable pour une vie de famille ou en colocation.

L'appartement dispose d'une cuisine ouverte, idéale pour les amateurs de convivialité. Il est également équipé d'une baignoire pour un confort optimal. Le chauffage est individuel électrique, vous permettant de gérer votre consommation énergétique de manière autonome. De plus, vous bénéficierez d'un balcon pour profiter des beaux jours.

Le loyer mensuel charges comprises s'élève à ?, avec des charges mensuelles de ? (charges communes et provision d'eau froide). Le dépôt de garantie est de ?. Le stationnement est disponible moyennant un loyer de 43?.

Cet appartement sera mis en location le 1er avril 2026. Aucuns frais d'agence ne sont à prévoir.

Ne manquez pas cette opportunité de vivre dans un cadre agréable et bien équipé.
Photographies des prestations intérieures non contractuelles.
Référence annonce : 1427144317

GARANTIES ACCEPTÉES
Visale
Garantie Studapart
Garant physique
ALERTE MAIL
Définissez la location que vous recherchez et nous vous enverrons par email toutes les annonces correspondantes
QUARTIER ET TRANSPORTS (Attention: l'adresse et le quartier de ce bien n'ont pas été communiqués par l'annonceur)
POUR VOUS AIDER
Trouvez la CAF à Rognes
Résidences étudiantes à Rognes
Trouvez un job à proximité
Financez votre logement
Liste des écoles à proximité
Découvrir Rognes
A quelles aides avez-vous droit ?
Simulation APL
Signaler un probleme
BIENS SIMILAIRES
Logement étudiant Location T2 Vide Rognes (13840) Location T2 Vide Rognes (13840) A partir de 672€
Logement étudiant Location T3 Vide Rognes (13840) Location T3 Vide Rognes (13840) A partir de 1 250€
Logement étudiant Location Chambre Vide Rognes (13840) Location Chambre Vide Rognes (13840) A partir de 1 196€
Besoin d'un logement à Rognes ?
Demande d'informations et réservations
Les aides au logement
Financement étudiant
1 161€ CC