Accueil > Location T3 > Rezé (44400) > 746 €CC

Logement étudiant à Rezé

Calculer vos aides

Location T3 à Rezé - Vide

746€ /mois cc
Ajouter au coup de coeur

Type de location : Location classique - Meublé : NonCalculez votre aide

Disponibilités : 21/03/2026
Disponibilités : 21/03/2026
Visite virtuelle
Logement étudiant T3 à Rezé (44400) 1/2
Disponibilités : 21/03/2026
Afficher le numéro de téléphone
Demande d'informations

Demande d'informations

Délai de réponse moyen: 24-48h

Je n'ai pas de garant
Recevoir les annonces similaires par email

Informations et réservations

Délai de réponse moyen: 24-48h

Je n'ai pas de garant
Recevoir les annonces similaires par email

LE LOGEMENT

Type de réservation:Location classique
Type de bien:T3
Ameublement:Vide
Classe énergétique:NC
GES:NC
Colocation possible:Non

DESCRIPTION

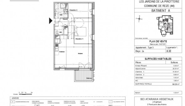
A Rezé, dans la résidence L'Angélique - Bâtiment A, au 2ème étage avec ascenseur, appartement T3 n°A22 de ² avec balcon de ², composé d'une entrée avec placard, un séjour avec partie cuisine, deux chambres, une salle d'eau, WC séparés. Chauffage et eau chaude individuels au gaz. Au rez-de-chaussée, une cave n°LV14. Au sous-sol, un parking n°PKS19.
Entretien ascenseur, entretien parties communes et espaces verts communs, compris dans les provisions sur charges mensuelles et donnant lieu à une régularisation annuelle. Les honoraires de location sont facturés directement au locataire par le partenaire pour 597? TTC. Quant aux honoraires de rédaction des états des lieux, ils sont facturés par AFEDIM Gestion pour 179? TTC, après réalisation, lors de l'entrée dans les lieux. Plus de détails sur notre site internet AFEDIM.
Les informations sur les risques auxquels ce bien est exposé sont disponibles sur le site Géorisques :
Référence annonce : 1427224608

BIENS SIMILAIRES
Logement étudiant Location Studio Vide Rezé (44400) Location Studio Vide Rezé (44400) A partir de 600€
Logement étudiant Location Studio Meublé Rezé (44400) Location Studio Meublé Rezé (44400) A partir de 350€
Logement étudiant Location Studio Meublé Rezé (44400) Location Studio Meublé Rezé (44400) A partir de 470€
GARANTIES ACCEPTÉES
Visale
Garantie Studapart
Garant physique
ALERTE MAIL
Définissez la location que vous recherchez et nous vous enverrons par email toutes les annonces correspondantes
QUARTIER ET TRANSPORTS (Attention: l'adresse et le quartier de ce bien n'ont pas été communiqués par l'annonceur)
POUR VOUS AIDER
Trouvez la CAF à Rezé
Résidences étudiantes à Rezé
Trouvez un job à proximité
Financez votre logement
Liste des écoles à proximité
Découvrir Rezé
A quelles aides avez-vous droit ?
Simulation APL
Signaler un probleme
BIENS SIMILAIRES
Logement étudiant Location T2 Vide Rezé (44400) Location T2 Vide Rezé (44400) A partir de 670€
Logement étudiant Location Studio Meublé Rezé (44400) Location Studio Meublé Rezé (44400) A partir de 525€
Logement étudiant Location T2 Vide Rezé (44400) Location T2 Vide Rezé (44400) A partir de 621€
Besoin d'un logement à Rezé ?
Demande d'informations et réservations
Les aides au logement
Financement étudiant
746€ CC