Accueil > Location T3 > Mignaloux Beauvoir (86550) > 672 €CC

Logement étudiant à Mignaloux Beauvoir

Calculer vos aides

Location T3 à Mignaloux Beauvoir - Vide

672€ /mois cc
Ajouter au coup de coeur

Type de location : Location classique - Meublé : NonCalculez votre aide

Disponibilités : 19/05/2026
Disponibilités : 19/05/2026
Visite virtuelle
Logement étudiant T3 à Mignaloux Beauvoir (86550) 1/2
Disponibilités : 19/05/2026
Afficher le numéro de téléphone
Demande d'informations

Demande d'informations

Délai de réponse moyen: 24-48h

Je n'ai pas de garant
Recevoir les annonces similaires par email

Informations et réservations

Délai de réponse moyen: 24-48h

Je n'ai pas de garant
Recevoir les annonces similaires par email

LE LOGEMENT

Type de réservation:Location classique
Type de bien:T3
Ameublement:Vide
Classe énergétique:NC
GES:NC
Colocation possible:Non

DESCRIPTION

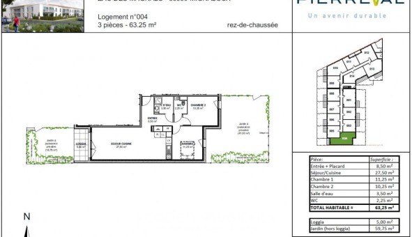
MIGNALOUX BEAUVOIR,Green Village sera implanté sur la zone Magnals à Mignaloux-Beauvoir. une ville à la campagne : création d'espaces verts, équipement soignés, jeux pour les enfants, circulation sécurisée et chemins piétonniers. Emplacement privilégié entre 2 parcs urbains. A proximité de la future place centrale avec commerces. Dans la Résidence neuve GREEN VILLAGE, vous est proposé un bel appartement (n°4) de type 3 de ² au RDC. Pièce de vie de ² avec espace cuisine donnant sur une loggia et un jardin exposés plein OUEST, salle d'eau avec douche et meuble vasque, WC séparé, deux chambres donnant chacune sur un second jardin de 41m². Stationnements extérieurs n°14 et 15. Chauffage et eau chaude par chaudière gaz à condensation. Entretien parties communes, entretien ascenseur et espaces verts communs, compris dans les provisions sur charges mensuelles et donnant lieu à une régularisation annuelle. Les honoraires de location TTC (à la charge du locataire) incluent le montant de rédaction des états des lieux facturé pour 191euros TTC, après réalisation lors de l'entrée dans les lieux. Disponible le 6/04/2026 Pour plus de détails sur ce logement, vous pouvez consulter la fiche descriptive de ce bien, sur votre site internet AFEDIM.
Les informations sur les risques auxquels ce bien est exposé sont disponibles sur le site Géorisques :
Référence annonce : 1427298652

GARANTIES ACCEPTÉES
Visale
Garantie Studapart
Garant physique
ALERTE MAIL
Définissez la location que vous recherchez et nous vous enverrons par email toutes les annonces correspondantes
QUARTIER ET TRANSPORTS (Attention: l'adresse et le quartier de ce bien n'ont pas été communiqués par l'annonceur)
POUR VOUS AIDER
Trouvez la CAF à Mignaloux Beauvoir
Résidences étudiantes à Mignaloux Beauvoir
Trouvez un job à proximité
Financez votre logement
Liste des écoles à proximité
Découvrir Mignaloux Beauvoir
A quelles aides avez-vous droit ?
Simulation APL
Signaler un probleme
BIENS SIMILAIRES
Logement étudiant Location Studio Vide Mignaloux Beauvoir (86550) Location Studio Vide Mignaloux Beauvoir (86550) A partir de 515€
Logement étudiant Location Studio Vide Mignaloux Beauvoir (86550) Location Studio Vide Mignaloux Beauvoir (86550) A partir de 545€
Logement étudiant Location Studio Vide Mignaloux Beauvoir (86550) Location Studio Vide Mignaloux Beauvoir (86550) A partir de 350€
Besoin d'un logement à Mignaloux Beauvoir ?
Demande d'informations et réservations
Les aides au logement
Financement étudiant
672€ CC