Type de logement
Les derniers articles
Les articles par catégorie
Le baromètre
L'indice des loyers
L'argus des prix
Calculer vos aides
Type de location : Location classique - Meublé : Non
Calculez votre aide
1/1
Afficher le numéro de téléphone
Demande d'informations
Informations et réservations
Délai de réponse moyen: 24-48h
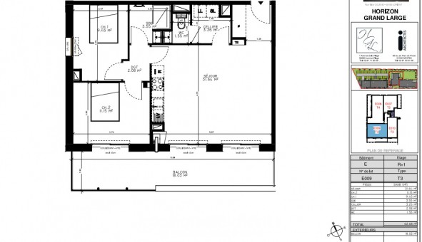
Soyez les premiers locataires de ce superbe appartement T3, neuf, qui vous offre, surfaces, volumes, lumière et confort, près de toutes commodités, dans une résidence récente, et calme dans le quartier de Kerfichant à LORIENT.
Caractéristiques principales :
o Surface habitable : m²
o Type : T3 avec 2 chambres
o séjour avec cuisine ouverte
o 1 Salle de bains avec douche
o Balcon privatif
o Chauffage et eau chaude : chaudière gaz individuelle
o Local Vélo
o Résidence construite en 2025
o Parking : stationnements aériens libres
Conditions de location :
o Loyer mensuel charges comprises : ? - dont charges locatives ?
o Dépôt de garantie : de ?
o Logements soumis à conditions de ressources (type PLS)
Ce logement T3 situé à LORIENT est soumis à condition de ressources : les ressources totales du ménage pour ces logements PLS (salaires + autres revenus) doivent être supérieures à 3 fois le montant du loyer.
Ce logement donne droit aux aides au logement.
Préparez impérativement votre numéro de demande de logement social. Si vous n'êtes pas enregistré.e dans le serveur national, retrouvez toutes les informations sur la demande de logement social sur le site de MORBIHAN HABITAT rubrique "Devenir Locataire".
Pour plus d'informations veuillez contacter MORBIHAN HABITAT uniquement par mail.
Référence annonce : 1427079693
Face aux difficultés rencontrées par les jeunes pour se loger, Location-etudiant.fr permet aux étudiants et aux jeunes actifs de trouver leur logement étudiant dans de nombreuses villes comme Paris, Lyon, Marseille, Toulouse, Lille ou Nantes. L'étudiant peut choisir parmi les 5 grands types de logement étudiant: les petites annonces de particuliers à particuliers, sans frais d'agence, les résidences étudiantes privées, les chambres chez l'habitant, la colocation et les cités U. Exclusivement dédié à la location de petites surfaces les particuliers bailleurs peuvent déposer leur annonces de studio, T1, 2 et 3 pièces directement sur le site. Des informations et guides pratiques sont disponibles pour tous les étudiants qui louent un studio ou un 2 pièces.
Immobilier Neuf Toulouse | Liste des Crous | Nos auteurs | Les villes de France | Colocations | Annuaire des agences immobilières | Informations sur les principales villes étudiantes | Liste des groupes de résidences étudiantes | Les caisses d'allocations familiales (CAF) en France | Les écoles et universités en France | Biens Loués | Résidences étudiantes
© METRES CARRES COM - Tous droits réservés - 2026


