Accueil > Location T3 > Lens (62300) > 816 €CC

Logement étudiant à Lens

Calculer vos aides

Location T3 à Lens - Vide

816€ /mois cc
Ajouter au coup de coeur

Type de location : Location classique - Meublé : NonCalculez votre aide

Disponibilités : 08/03/2026
Disponibilités : 08/03/2026
Visite virtuelle
Logement étudiant T3 à Lens (62300) 1/2
Disponibilités : 08/03/2026
Afficher le numéro de téléphone
Demande d'informations

Demande d'informations

Délai de réponse moyen: 24-48h

Je n'ai pas de garant
Recevoir les annonces similaires par email

Informations et réservations

Délai de réponse moyen: 24-48h

Je n'ai pas de garant
Recevoir les annonces similaires par email

LE LOGEMENT

Type de réservation:Location classique
Type de bien:T3
Ameublement:Vide
Classe énergétique:NC
GES:NC
Colocation possible:Non

DESCRIPTION

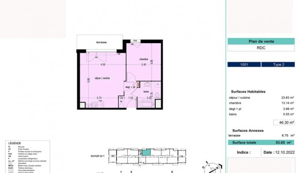
A LENS, à proximité de LILLE et ARRAS et à deux pas de l'hyper-centre, nous vous proposons dans la résidence LES HAUTS DE MONTGRE un appartement type 3 de m² n°1110. Il se compose d'un séjour de m² ouvert sur une cuisine meublée et équipée (plaque, hotte, évier)., de 2 chambres, une salle de bains avec WC séparé. Un balcon de 7.5 m² exposé SUD complète ce bien. Un emplacement de stationnement en extérieur n°121.
Entretien parties communes, ascenseur et espaces verts, compris dans les provisions sur charges mensuelles et donnant lieu à une régularisation annuelle.
Les honoraires de location TTC (à la charge du locataire) incluent le montant de rédaction des états des lieux facturé pour 505 euros TTC, après réalisation lors de l'entrée dans les lieux.
Plus de détails sur notre site internet AFEDIM.
Logement disponible à partir du 01/04/2026
Les informations sur les risques auxquels ce bien est exposé sont disponibles sur le site Géorisques :
Référence annonce : 1427201297

GARANTIES ACCEPTÉES
Visale
Garantie Studapart
Garant physique
ALERTE MAIL
Définissez la location que vous recherchez et nous vous enverrons par email toutes les annonces correspondantes
QUARTIER ET TRANSPORTS (Attention: l'adresse et le quartier de ce bien n'ont pas été communiqués par l'annonceur)
POUR VOUS AIDER
Trouvez la CAF à Lens
Résidences étudiantes à Lens
Trouvez un job à proximité
Financez votre logement
Liste des écoles à proximité
Découvrir Lens
A quelles aides avez-vous droit ?
Simulation APL
Signaler un probleme
BIENS SIMILAIRES
Logement étudiant Location T2 Vide Lens (62300) Location T2 Vide Lens (62300) A partir de 640€
Logement étudiant Location T2 Vide Lens (62300) Location T2 Vide Lens (62300) A partir de 567€
Logement étudiant Location T2 Vide Lens (62300) Location T2 Vide Lens (62300) A partir de 534€
Besoin d'un logement à Lens ?
Demande d'informations et réservations
Les aides au logement
Financement étudiant
816€ CC