Accueil > Location T3 > Le Mée sur Seine (77350) > 957 €CC

Logement étudiant à Le Mée sur Seine

Calculer vos aides

Location T3 à Le Mée sur Seine - Vide

957€ /mois cc
Ajouter au coup de coeur

Type de location : Location classique - Meublé : NonCalculez votre aide

Disponibilités : 09/11/2025
Disponibilités : 09/11/2025
Visite virtuelle
Logement étudiant T3 à Le Mée sur Seine (77350) 1/2
Disponibilités : 09/11/2025
Afficher le numéro de téléphone
Demande d'informations

Demande d'informations

Délai de réponse moyen: 24-48h

Je n'ai pas de garant
Recevoir les annonces similaires par email

Informations et réservations

Délai de réponse moyen: 24-48h

Je n'ai pas de garant
Recevoir les annonces similaires par email

LE LOGEMENT

Type de réservation:Location classique
Type de bien:T3
Ameublement:Vide
Classe énergétique:NC
GES:NC
Colocation possible:Non

DESCRIPTION

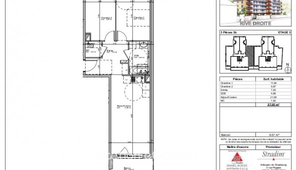
A Le Mée Sur Seine, limitrophe de Melun qui est une ville au fort patrimoine historique, culturel et où la nature est omniprésente, dans la résidence neuve " RIVE DROITE - QUAI LALLIA , nous vous proposons un appartement T3 n° A304 de . Situé au 3ème étage du bâtiment A, avec ascenseur, il comprend : une entrée, un séjour avec coin cuisine donnant accès sur un balcon de ², deux chambres, une salle de bain, un water-closet. Au sous-sol un box n°33. Eau chaude et chauffage collectif gaz. Eau froide, entretien parties communes, entretien ascenseur et espaces verts communs, compris dans les provisions sur charges mensuelles et donnant lieu à une régularisation annuelle. Les honoraires de location TTC (à la charge du locataire) incluent le montant de rédaction des états des lieux facturé pour 171,00 euros TTC, après réalisation lors de l'entrée dans les lieux.
Les informations sur les risques auxquels ce bien est exposé sont disponibles sur le site Géorisques :
Référence annonce : 1426939967

GARANTIES ACCEPTÉES
Visale
Garantie Studapart
Garant physique
ALERTE MAIL
Définissez la location que vous recherchez et nous vous enverrons par email toutes les annonces correspondantes
QUARTIER ET TRANSPORTS (Attention: l'adresse et le quartier de ce bien n'ont pas été communiqués par l'annonceur)
POUR VOUS AIDER
Trouvez la CAF à Le Mée sur Seine
Résidences étudiantes à Le Mée sur Seine
Trouvez un job à proximité
Financez votre logement
Liste des écoles à proximité
Découvrir Le Mée sur Seine
A quelles aides avez-vous droit ?
Simulation APL
Signaler un probleme
BIENS SIMILAIRES
Logement étudiant Location T5 Vide Boissettes (77350) Location T5 Vide Boissettes (77350) A partir de 1 300€
Logement étudiant Location T5 Vide Boissettes (77350) Location T5 Vide Boissettes (77350) A partir de 1 064€
Logement étudiant Location T3 Vide Boissettes (77350) Location T3 Vide Boissettes (77350) A partir de 1 050€
Besoin d'un logement à Le Mée sur Seine ?
Demande d'informations et réservations
Les aides au logement
Financement étudiant
957€ CC