Accueil > Location T3 > Dijon (21000) > 813 €CC

Logement étudiant à Dijon

Calculer vos aides

Location T3 à Dijon - Vide

813€ /mois cc
Ajouter au coup de coeur

Type de location : Location classique - Meublé : NonCalculez votre aide

Disponibilités : 28/01/2026
Disponibilités : 28/01/2026
Visite virtuelle
Logement étudiant T3 à Dijon (21000) 1/2
Disponibilités : 28/01/2026
Afficher le numéro de téléphone
Demande d'informations

Demande d'informations

Délai de réponse moyen: 24-48h

Je n'ai pas de garant
Recevoir les annonces similaires par email

Informations et réservations

Délai de réponse moyen: 24-48h

Je n'ai pas de garant
Recevoir les annonces similaires par email

LE LOGEMENT

Type de réservation:Location classique
Type de bien:T3
Ameublement:Vide
Classe énergétique:NC
GES:NC
Colocation possible:Non

DESCRIPTION

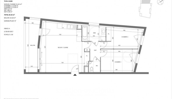
DIJON - Proche commerces et stations de tramway. Nous vous proposons, dans la résidence VILLA ROMANEE, un appartement T3 n°A104 de m². Situé au 1er étage avec ascenseur du bâtiment A, il comprend un séjour de 32 m² avec cuisine ouverte donnant sur une loggia de m², deux chambres dont une avec placard, une salle de bain et un WC séparé. Un parking intérieur n°G15 et une cave n°C04 sont à votre disposition. Chauffage et eau chaude collectifs gaz avec compteurs individuels, entretien parties communes, ascenseur et espaces verts communs, compris dans les provisions sur charges mensuelles et donnant lieu à une régularisation annuelle. Les honoraires de location sont facturés directement au locataire par le partenaire pour 530 ? TTC. Quant aux honoraires de rédaction des états des lieux, ils sont facturés par AFEDIM Gestion pour 199 ? TTC, après réalisation, lors de l'entrée dans les lieux. Plus de détails sur notre site internet AFEDIM.
Les informations sur les risques auxquels ce bien est exposé sont disponibles sur le site Géorisques :
Référence annonce : 1427110622

BIENS SIMILAIRES
Logement étudiant Location Studio Meublé Dijon (21000) Location Studio Meublé Dijon (21000) A partir de 440€
Logement étudiant Location T2 Meublé Dijon (21000) Location T2 Meublé Dijon (21000) A partir de 495€
Logement étudiant Location Studio Meublé Dijon (21000) Location Studio Meublé Dijon (21000) A partir de 400€
GARANTIES ACCEPTÉES
Visale
Garantie Studapart
Garant physique
ALERTE MAIL
Définissez la location que vous recherchez et nous vous enverrons par email toutes les annonces correspondantes
QUARTIER ET TRANSPORTS (Attention: l'adresse et le quartier de ce bien n'ont pas été communiqués par l'annonceur)
POUR VOUS AIDER
Trouvez la CAF à Dijon
Résidences étudiantes à Dijon
Trouvez un job à proximité
Financez votre logement
Liste des écoles à proximité
Découvrir Dijon
A quelles aides avez-vous droit ?
Simulation APL
Signaler un probleme
BIENS SIMILAIRES
Logement étudiant Location T4 Vide Dijon (21000) Location T4 Vide Dijon (21000) A partir de 1 070€
Logement étudiant Location T2 Vide Dijon (21000) Location T2 Vide Dijon (21000) A partir de 590€
Logement étudiant Location T2 Vide Dijon (21000) Location T2 Vide Dijon (21000) A partir de 743€
Besoin d'un logement à Dijon ?
Demande d'informations et réservations
Les aides au logement
Financement étudiant
813€ CC