Type de logement
Les derniers articles
Les articles par catégorie
Le baromètre
L'indice des loyers
L'argus des prix
Type de location : Location classique - Meublé : NonCalculez votre aide
Informations et réservations
Délai de réponse moyen: 24-48h
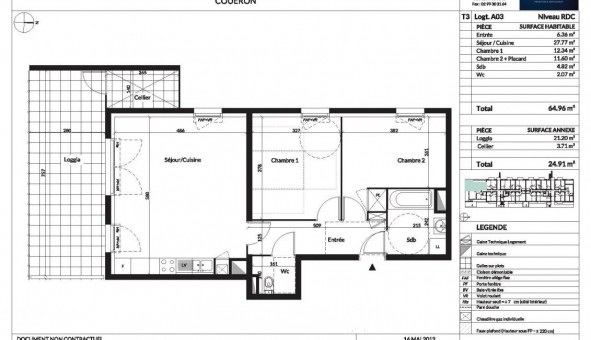
A Couëron, dans la résidence Cassiopée, appartement T3 n°A03 (lot 3) de ² avec loggia exposée sud de ², situé au RDC du bâtiment A, composé d'un séjour sur sol stratifié avec coin cuisine, deux chambres (dont une avec placard), une salle de bains, WC séparés, un cellier. Chauffage individuel gaz. Un parking en sous-sol n°51 (lot 105), un parking extérieur n°1 (lot 107). Pinel B1.
Le montant des honoraires mentionné inclut le montant des honoraires de location (visite, constitution dossier, bail) facturé directement au locataire par AFEDIM ou par le partenaire pour 649 euros TTC et le montant des honoraires de rédaction des états des lieux facturés par AFEDIM Gestion Immobilière pour 194 euros TTC, après réalisation, lors de l'entrée dans les lieux. Le règlement des honoraires état des lieux est à adresser avec le bail signé à AFEDIM Gestion.
Les informations sur les risques auxquels ce bien est exposé sont disponibles sur le site Géorisques :
Référence annonce : 1426843944
Face aux difficultés rencontrées par les jeunes pour se loger, Location-etudiant.fr permet aux étudiants et aux jeunes actifs de trouver leur logement étudiant dans de nombreuses villes comme Paris, Lyon, Marseille, Toulouse, Lille ou Nantes. L'étudiant peut choisir parmi les 5 grands types de logement étudiant: les petites annonces de particuliers à particuliers, sans frais d'agence, les résidences étudiantes privées, les chambres chez l'habitant, la colocation et les cités U. Exclusivement dédié à la location de petites surfaces les particuliers bailleurs peuvent déposer leur annonces de studio, T1, 2 et 3 pièces directement sur le site. Des informations et guides pratiques sont disponibles pour tous les étudiants qui louent un studio ou un 2 pièces.
Immobilier Neuf Toulouse | Liste des Crous | Nos auteurs | Les villes de France | Colocations | Annuaire des agences immobilières | Informations sur les principales villes étudiantes | Liste des groupes de résidences étudiantes | Les caisses d'allocations familiales (CAF) en France | Les écoles et universités en France | Biens Loués | Résidences étudiantes
© METRES CARRES COM - Tous droits réservés - 2025