Accueil > Location T3 > Chessy (77700) > 1 111 €CC

Logement étudiant à Chessy

Calculer vos aides

Location T3 à Chessy - Vide

1 111€ /mois cc
Ajouter au coup de coeur

Type de location : Location classique - Meublé : NonCalculez votre aide

Disponibilités : 05/04/2026
Disponibilités : 05/04/2026
Visite virtuelle
Logement étudiant T3 à Chessy (77700) 1/2
Disponibilités : 05/04/2026
Afficher le numéro de téléphone
Demande d'informations

Demande d'informations

Délai de réponse moyen: 24-48h

Je n'ai pas de garant
Recevoir les annonces similaires par email

Informations et réservations

Délai de réponse moyen: 24-48h

Je n'ai pas de garant
Recevoir les annonces similaires par email

LE LOGEMENT

Type de réservation:Location classique
Type de bien:T3
Ameublement:Vide
Classe énergétique:NC
GES:NC
Colocation possible:Non

DESCRIPTION

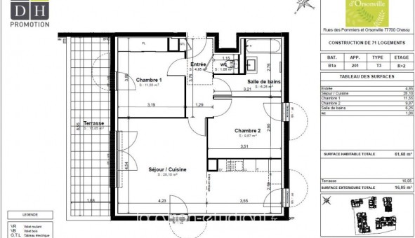
A Chessy, dans la résidence "Les Jardins d'Orsonville", un appartement T3 n°201 de m² avec une terrasse de ², situé au 2eme étage du bâtiment B1A avec ascenseur. Il comprend une entrée, un séjour de ² avec coin cuisine, deux chambres dont une avec placard, une salle de bain et WC séparé. Au sous-sol, deux parkings n°6/7. Eau chaude et chauffage (collectif). Entretien parties communes, entretien ascenseur et espaces verts communs, compris dans les provisions sur charges mensuelles et donnant lieu à une régularisation annuelle. Les honoraires de location 808euros TTC (à la charge du locataire) incluent le montant de rédaction des états des lieux facturé pour 186euros TTC, après réalisation lors de l'entrée dans les lieux. Disponible le 12/04/2026. Pour plus de détails sur ce logement, vous pouvez consulter la fiche descriptive de ce bien, sur votre site internet AFEDIM.
Les informations sur les risques auxquels ce bien est exposé sont disponibles sur le site Géorisques :
Référence annonce : 1427259560

GARANTIES ACCEPTÉES
Visale
Garantie Studapart
Garant physique
ALERTE MAIL
Définissez la location que vous recherchez et nous vous enverrons par email toutes les annonces correspondantes
QUARTIER ET TRANSPORTS (Attention: l'adresse et le quartier de ce bien n'ont pas été communiqués par l'annonceur)
POUR VOUS AIDER
Trouvez la CAF à Chessy
Résidences étudiantes à Chessy
Trouvez un job à proximité
Financez votre logement
Liste des écoles à proximité
Découvrir Chessy
A quelles aides avez-vous droit ?
Simulation APL
Signaler un probleme
BIENS SIMILAIRES
Logement étudiant Location T4 Vide Bailly Romainvilliers (77700) Location T4 Vide Bailly Romainvilliers (77700) A partir de 1 529€
Logement étudiant Location Studio Vide Bailly Romainvilliers (77700) Location Studio Vide Bailly Romainvilliers (77700) A partir de 737€
Logement étudiant Location Duplex Vide Bailly Romainvilliers (77700) Location Duplex Vide Bailly Romainvilliers (77700) A partir de 2 299€
Besoin d'un logement à Chessy ?
Demande d'informations et réservations
Les aides au logement
Financement étudiant
1 111€ CC