Accueil > Location T3 > Chenôve (21300) > 1 170 €CC

Logement étudiant à Chenôve

Calculer vos aides

Location T3 à Chenôve - Vide

1 170€ /mois cc
Ajouter au coup de coeur

Type de location : Location classique - Meublé : NonCalculez votre aide

Disponibilités : 10/01/2026
Disponibilités : 10/01/2026
Visite virtuelle
Logement étudiant T3 à Chenôve (21300) 1/2
Disponibilités : 10/01/2026
Afficher le numéro de téléphone
Demande d'informations

Demande d'informations

Délai de réponse moyen: 24-48h

Je n'ai pas de garant
Recevoir les annonces similaires par email

Informations et réservations

Délai de réponse moyen: 24-48h

Je n'ai pas de garant
Recevoir les annonces similaires par email

LE LOGEMENT

Type de réservation:Location classique
Type de bien:T3
Ameublement:Vide
Classe énergétique:NC
GES:NC
Colocation possible:Non

DESCRIPTION

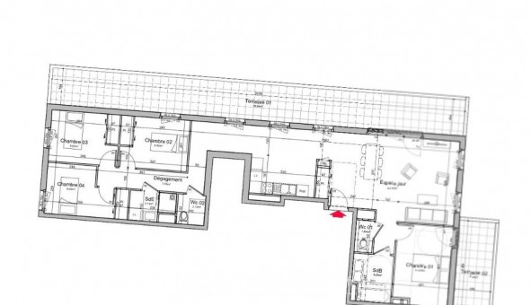
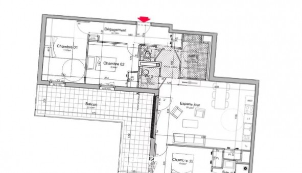
A LOUER T5 103 m² résidence neuve parking/ 2 terrasses Lot B501 - Appartement à louer T5 au 5ème et dernier étage dans une résidence neuve, logement non meublé de m² carrez, L'appartement se compose d'un grand espace de jour avec placard, d'un dégagement donnant accès à une 1ère chambre avec sa terrasse privative, une salle de bain et un toilette, un coin cuisine semi-séparé aménagée, et un couloir desservant 3 autres chambres un 2ème toilette et une salle de douche et une grande terrasse traversante. Résidence avec parking sous terrain + extérieur, chauffage communs et eau chaude commune, 2 locaux à vélos. Normes PMR. Vidéophone, VMC commune, ascenseur. Belle résidence. Loyer de 1020 euros/mois donc 180 euros de charges incluses 1 mois de caution soit 840 euros. Pas d'honoraire d'agence pour les locataires Durée du bail 6 ans Plusieurs logements disponibles dans la résidence du T2 au T5. Cet appartement s'adresse aux salariés ou retraité depuis -de 5 ans du secteur privé (cotisants ou non au 1% logement) hors secteur agricole, sous critères financiers.
Référence annonce : 1427065941

GARANTIES ACCEPTÉES
Visale
Garantie Studapart
Garant physique
ALERTE MAIL
Définissez la location que vous recherchez et nous vous enverrons par email toutes les annonces correspondantes
QUARTIER ET TRANSPORTS (Attention: l'adresse et le quartier de ce bien n'ont pas été communiqués par l'annonceur)
POUR VOUS AIDER
Trouvez la CAF à Chenôve
Résidences étudiantes à Chenôve
Trouvez un job à proximité
Financez votre logement
Liste des écoles à proximité
Découvrir Chenôve
A quelles aides avez-vous droit ?
Simulation APL
Signaler un probleme
BIENS SIMILAIRES
Logement étudiant Location T2 Vide Chenôve (21300) Location T2 Vide Chenôve (21300) A partir de 710€
Logement étudiant Location T2 Vide Chenôve (21300) Location T2 Vide Chenôve (21300) A partir de 720€
Logement étudiant Location T3 Vide Chenôve (21300) Location T3 Vide Chenôve (21300) A partir de 1 020€
Besoin d'un logement à Chenôve ?
Demande d'informations et réservations
Les aides au logement
Financement étudiant
1 170€ CC