Accueil > Location T3 > Bondoufle (91070) > 976 €CC

Logement étudiant à Bondoufle

Calculer vos aides

Location T3 à Bondoufle - Vide

976€ /mois cc
Ajouter au coup de coeur

Type de location : Location classique - Meublé : NonCalculez votre aide

Disponibilités : 18/12/2025
Disponibilités : 18/12/2025
Visite virtuelle
Logement étudiant T3 à Bondoufle (91070) 1/2
Disponibilités : 18/12/2025
Afficher le numéro de téléphone
Demande d'informations

Demande d'informations

Délai de réponse moyen: 24-48h

Je n'ai pas de garant
Recevoir les annonces similaires par email

Informations et réservations

Délai de réponse moyen: 24-48h

Je n'ai pas de garant
Recevoir les annonces similaires par email

LE LOGEMENT

Type de réservation:Location classique
Type de bien:T3
Ameublement:Vide
Classe énergétique:NC
GES:NC
Colocation possible:Non

DESCRIPTION

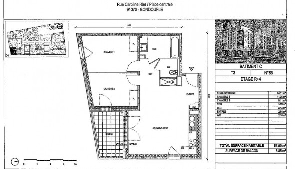
BONDOUFLE, c'est ici dans la résidence COUR EMEREUDE dans le bâtiment A que nous vous proposons un appartement T3 (n°C58), d'une superficie de 57,59 m² situé au 4ème étage avec ascenseur. Il se compose d'une entrée, d'un dégagement, d'un séjour-cuisine de 24,11 m² donnant sur un balcon de 6,85 m² orienté Sud, d'une salle de bain, de WC et de deux chambres de 11,25 m² et de 9,11 m². Un emplacement de parking n°38 est également à votre disposition. Chauffage, eau chaude, eau froide, espaces verts commun, ascenseur et entretien parties communes, compris dans les provisions sur charges mensuelles et donnant lieu à une régularisation annuelle. Les honoraires de location TTC (à la charge du locataire) incluent le montant de rédaction des états des lieux facturé 172 euros TTC, après réalisation lors de l'entrée dans les lieux. Disponibilité prévisionnelle au 02/07/2025. Plus de détails sur ce logement sur notre site internet AFEDIM
Les informations sur les risques auxquels ce bien est exposé sont disponibles sur le site Géorisques :
Référence annonce : 1427021689

GARANTIES ACCEPTÉES
Visale
Garantie Studapart
Garant physique
ALERTE MAIL
Définissez la location que vous recherchez et nous vous enverrons par email toutes les annonces correspondantes
QUARTIER ET TRANSPORTS (Attention: l'adresse et le quartier de ce bien n'ont pas été communiqués par l'annonceur)
POUR VOUS AIDER
Trouvez la CAF à Bondoufle
Résidences étudiantes à Bondoufle
Trouvez un job à proximité
Financez votre logement
Liste des écoles à proximité
Découvrir Bondoufle
A quelles aides avez-vous droit ?
Simulation APL
Signaler un probleme
BIENS SIMILAIRES
Logement étudiant Location T3 Meublé Bondoufle (91070) Location T3 Meublé Bondoufle (91070) A partir de 1 090€
Logement étudiant Location T2 Vide Bondoufle (91070) Location T2 Vide Bondoufle (91070) A partir de 734€
Logement étudiant Location Studio Vide Bondoufle (91070) Location Studio Vide Bondoufle (91070) A partir de 690€
Besoin d'un logement à Bondoufle ?
Demande d'informations et réservations
Les aides au logement
Financement étudiant
976€ CC