Accueil > Location T3 > Bezannes (51430) > 730 €CC

Logement étudiant à Bezannes

Calculer vos aides

Location T3 à Bezannes - Vide

730€ /mois cc
Ajouter au coup de coeur

Type de location : Location classique - Meublé : NonCalculez votre aide

Disponibilités : 19/01/2026
Disponibilités : 19/01/2026
Visite virtuelle
Logement étudiant T3 à Bezannes (51430) 1/2
Disponibilités : 19/01/2026
Afficher le numéro de téléphone
Demande d'informations

Demande d'informations

Délai de réponse moyen: 24-48h

Je n'ai pas de garant
Recevoir les annonces similaires par email

Informations et réservations

Délai de réponse moyen: 24-48h

Je n'ai pas de garant
Recevoir les annonces similaires par email

LE LOGEMENT

Type de réservation:Location classique
Type de bien:T3
Ameublement:Vide
Classe énergétique:NC
GES:NC
Colocation possible:Non

DESCRIPTION

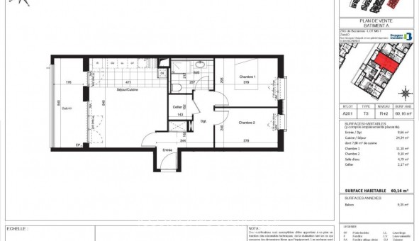
A BEZANNES, dans la résidence "ZENEO" nous vous proposons un appartement de type T3 n°A201 de m². Situé au 2eme étage, il comprend : un séjour avec cuisine donnant sur un balcon de ², deux chambres, une salle d'eau avec WC, un cellier et un dégagement. En extérieur un parking n°13. Eau chaude et chauffage (individuel). Entretien parties communes, entretien ascenseur et espaces verts communs, compris dans les provisions sur charges mensuelles et donnant lieu à une régularisation annuelle. Les honoraires de location TTC (à la charge du locataire) incluent le montant de rédaction des états des lieux facturé pour 180euros TTC, après réalisation lors de l'entrée dans les lieux. Disponible le 08/03/2026. Pour plus de détails sur ce logement, vous pouvez consulter la fiche descriptive de ce bien, sur votre site internet AFEDIM.
Les informations sur les risques auxquels ce bien est exposé sont disponibles sur le site Géorisques :
Référence annonce : 1427087897

GARANTIES ACCEPTÉES
Visale
Garantie Studapart
Garant physique
ALERTE MAIL
Définissez la location que vous recherchez et nous vous enverrons par email toutes les annonces correspondantes
QUARTIER ET TRANSPORTS (Attention: l'adresse et le quartier de ce bien n'ont pas été communiqués par l'annonceur)
POUR VOUS AIDER
Trouvez la CAF à Bezannes
Résidences étudiantes à Bezannes
Trouvez un job à proximité
Financez votre logement
Découvrir Bezannes
A quelles aides avez-vous droit ?
Simulation APL
Signaler un probleme
BIENS SIMILAIRES
Logement étudiant Location T3 Vide Bezannes (51430) Location T3 Vide Bezannes (51430) A partir de 770€
Logement étudiant Location T2 Vide Bezannes (51430) Location T2 Vide Bezannes (51430) A partir de 695€
Logement étudiant Location T4 Vide Bezannes (51430) Location T4 Vide Bezannes (51430) A partir de 1 062€
Besoin d'un logement à Bezannes ?
Demande d'informations et réservations
Les aides au logement
Financement étudiant
730€ CC