Accueil > Location T3 > Angers (49000) > 883 €CC

Logement étudiant à Angers

Calculer vos aides

Location T3 à Angers - Vide

883€ /mois cc
Ajouter au coup de coeur

Type de location : Location classique - Meublé : NonCalculez votre aide

Disponibilités : 15/03/2026
Disponibilités : 15/03/2026
Visite virtuelle
Logement étudiant T3 à Angers (49000) 1/2
Disponibilités : 15/03/2026
Afficher le numéro de téléphone
Demande d'informations

Demande d'informations

Délai de réponse moyen: 24-48h

Je n'ai pas de garant
Recevoir les annonces similaires par email

Informations et réservations

Délai de réponse moyen: 24-48h

Je n'ai pas de garant
Recevoir les annonces similaires par email

LE LOGEMENT

Type de réservation:Location classique
Type de bien:T3
Ameublement:Vide
Classe énergétique:NC
GES:NC
Colocation possible:Non

DESCRIPTION

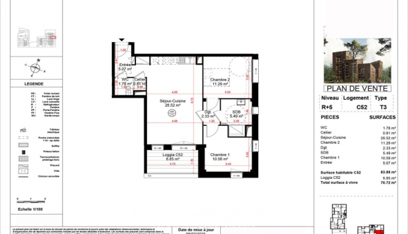
A ANGERS - Nous vous proposons dans la résidence neuve LES BOIS, un appartement T3 n°C52 de ². Situé au 5e étage du bâtiment C, il comprend une entrée avec placard, un séjour cuisine de ² donnant sur une loggia de ², deux chambres, une salle d'eau et un WC séparé. Chauffage et eau chaude collectifs urbain. Une place de parking en sous-sol n° 52. Entretien parties communes, ascenseur et espaces verts communs, compris dans les provisions sur charges mensuelles et donnant lieu à une régularisation annuelle. Les honoraires de location de 708 euros TTC (à la charge du locataire) incluent le montant de rédaction des états des lieux facturé pour 193 euros TTC, après réalisation lors de l'entrée dans les lieux. Plus de détails sur notre site AFEDIM.
Les informations sur les risques auxquels ce bien est exposé sont disponibles sur le site Géorisques :
Référence annonce : 1427216384

BIENS SIMILAIRES
Logement étudiant Location Studio Meublé Angers (49000) Location Studio Meublé Angers (49000) A partir de 415€
Logement étudiant Location T2 Meublé Angers (49000) Location T2 Meublé Angers (49000) A partir de 780€
Logement étudiant Location T3 Vide Angers (49000) Location T3 Vide Angers (49000) A partir de 1 120€
GARANTIES ACCEPTÉES
Visale
Garantie Studapart
Garant physique
ALERTE MAIL
Définissez la location que vous recherchez et nous vous enverrons par email toutes les annonces correspondantes
QUARTIER ET TRANSPORTS (Attention: l'adresse et le quartier de ce bien n'ont pas été communiqués par l'annonceur)
POUR VOUS AIDER
Trouvez la CAF à Angers
Résidences étudiantes à Angers
Trouvez un job à proximité
Financez votre logement
Liste des écoles à proximité
Découvrir Angers
A quelles aides avez-vous droit ?
Simulation APL
Signaler un probleme
BIENS SIMILAIRES
Logement étudiant Location T2 Vide Angers (49000) Location T2 Vide Angers (49000) A partir de 710€
Logement étudiant Location T2 Vide Angers (49000) Location T2 Vide Angers (49000) A partir de 630€
Logement étudiant Location T3 Vide Angers (49000) Location T3 Vide Angers (49000) A partir de 760€
Besoin d'un logement à Angers ?
Demande d'informations et réservations
Les aides au logement
Financement étudiant
883€ CC