Accueil > Location T3 > Angers (49000) > 935 €CC

Logement étudiant à Angers

Calculer vos aides

Location T3 à Angers - Vide

935€ /mois cc
Ajouter au coup de coeur

Type de location : Location classique - Meublé : NonCalculez votre aide

Disponibilités : 20/11/2025
Disponibilités : 20/11/2025
Visite virtuelle
Logement étudiant T3 à Angers (49000) 1/2
Disponibilités : 20/11/2025
Afficher le numéro de téléphone
Demande d'informations

Demande d'informations

Délai de réponse moyen: 24-48h

Je n'ai pas de garant
Recevoir les annonces similaires par email

Informations et réservations

Délai de réponse moyen: 24-48h

Je n'ai pas de garant
Recevoir les annonces similaires par email

LE LOGEMENT

Type de réservation:Location classique
Type de bien:T3
Ameublement:Vide
Classe énergétique:NC
GES:NC
Colocation possible:Non

DESCRIPTION

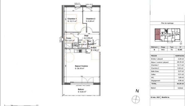
A ANGERS, dans la résidence neuve ILOT ALTO, nous vous proposons ce T3 de ² situé au deuxième étage du bâtiment B. Il se compose d'une entrée avec placard, un séjour/cuisine donnant sur un balcon de ², un dégagement desservant un cellier, deux chambres, une salle d'eau et un WC. Au sous-sol un emplacement de stationnement. Chauffage et eau chaude collectifs urbain. Eau chaude, eau froide, chauffage, entretien parties communes et ascenseur, compris dans les provisions sur charges mensuelles et donnant lieu à une régularisation annuelle. Les honoraires de location TTC (à la charge du locataire) incluent le montant de rédaction des états des lieux facturé pour 193 euros TTC, après réalisation lors de l'entrée dans les lieux. Disponibilité prévisionnelle courant janvier 2026. Plus de détails sur notre site AFEDIM. Logement neuf en cours de construction - DPE à venir
Les informations sur les risques auxquels ce bien est exposé sont disponibles sur le site Géorisques :
Référence annonce : 1426964711

BIENS SIMILAIRES
Logement étudiant Location Studio Meublé Angers (49000) Location Studio Meublé Angers (49000) A partir de 650€
Logement étudiant Location T2 Meublé Angers (49000) Location T2 Meublé Angers (49000) A partir de 665€
Logement étudiant Location T4 Meublé Angers (49000) Location T4 Meublé Angers (49000) A partir de 1 290€
GARANTIES ACCEPTÉES
Visale
Garantie Studapart
Garant physique
ALERTE MAIL
Définissez la location que vous recherchez et nous vous enverrons par email toutes les annonces correspondantes
QUARTIER ET TRANSPORTS (Attention: l'adresse et le quartier de ce bien n'ont pas été communiqués par l'annonceur)
POUR VOUS AIDER
Trouvez la CAF à Angers
Résidences étudiantes à Angers
Trouvez un job à proximité
Financez votre logement
Liste des écoles à proximité
Découvrir Angers
A quelles aides avez-vous droit ?
Simulation APL
Signaler un probleme
BIENS SIMILAIRES
Logement étudiant Location T2 Vide Angers (49000) Location T2 Vide Angers (49000) A partir de 670€
Logement étudiant Location Studio Meublé Angers (49000) Location Studio Meublé Angers (49000) A partir de 420€
Logement étudiant Location Studio Meublé Angers (49000) Location Studio Meublé Angers (49000) A partir de 420€
Besoin d'un logement à Angers ?
Demande d'informations et réservations
Les aides au logement
Financement étudiant
935€ CC