Accueil > Location T3 > Amiens (80090) > 830 €CC

Logement étudiant à Amiens

Calculer vos aides

Location T3 à Amiens - Vide

830€ /mois cc
Ajouter au coup de coeur

Type de location : Location classique - Meublé : NonCalculez votre aide

Disponibilités : 10/01/2026
Disponibilités : 10/01/2026
Visite virtuelle
Logement étudiant T3 à Amiens (80090) 1/2
Disponibilités : 10/01/2026
Afficher le numéro de téléphone
Demande d'informations

Demande d'informations

Délai de réponse moyen: 24-48h

Je n'ai pas de garant
Recevoir les annonces similaires par email

Informations et réservations

Délai de réponse moyen: 24-48h

Je n'ai pas de garant
Recevoir les annonces similaires par email

LE LOGEMENT

Type de réservation:Location classique
Type de bien:T3
Ameublement:Vide
Classe énergétique:NC
GES:NC
Colocation possible:Non

DESCRIPTION

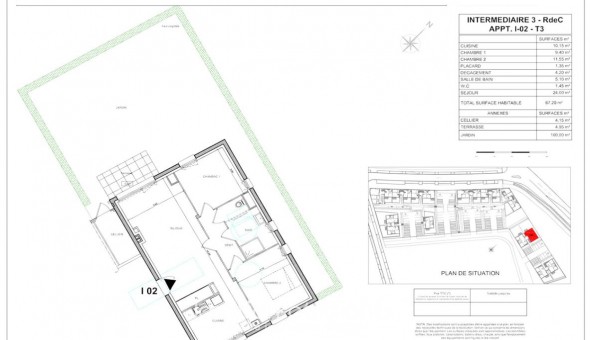
A AMIENS, dans la résidence LES JARDINS D'ENEE, nous vous proposons ce T3 n°I02 de ² situé en rez-de-jardin avec terrasse et jardin privatif. Le logement se compose d'un séjour cuisine donnant sur une terrasse de m² et un jardin de 110m²,d'un dégagement, d'une salle d'eau et de WC séparés ainsi que deux chambres de et m². Deux places de parking extérieure P67 et P68 complètent le lot. Chauffage et eau chaude individuel gaz. Entretien parties communes, compris dans les provisions sur charges mensuelles et donnant lieu à une régularisation annuelle. Les honoraires de location TTC (à la charge du locataire) incluent le montant de rédaction des états des lieux facturé pour 203 euros TTC, après réalisation lors de l'entrée dans les lieux. Plus de détails sur notre site AFEDIM.
Les informations sur les risques auxquels ce bien est exposé sont disponibles sur le site Géorisques :
Référence annonce : 1427067407

BIENS SIMILAIRES
Logement étudiant Location T2 Meublé Amiens (80090) Location T2 Meublé Amiens (80090) A partir de 640€
Logement étudiant Location Studio Meublé Amiens (80090) Location Studio Meublé Amiens (80090) A partir de 400€
Logement étudiant Location Studio Meublé Amiens (80090) Location Studio Meublé Amiens (80090) A partir de 530€
GARANTIES ACCEPTÉES
Visale
Garantie Studapart
Garant physique
ALERTE MAIL
Définissez la location que vous recherchez et nous vous enverrons par email toutes les annonces correspondantes
QUARTIER ET TRANSPORTS (Attention: l'adresse et le quartier de ce bien n'ont pas été communiqués par l'annonceur)
POUR VOUS AIDER
Trouvez la CAF à Amiens
Résidences étudiantes à Amiens
Trouvez un job à proximité
Financez votre logement
Liste des écoles à proximité
Découvrir Amiens
A quelles aides avez-vous droit ?
Simulation APL
Signaler un probleme
BIENS SIMILAIRES
Logement étudiant Location Studio Vide Amiens (80090) Location Studio Vide Amiens (80090) A partir de 500€
Logement étudiant Location T4 Vide Amiens (80090) Location T4 Vide Amiens (80090) A partir de 858€
Logement étudiant Location Studio Vide Amiens (80090) Location Studio Vide Amiens (80090) A partir de 420€
Besoin d'un logement à Amiens ?
Demande d'informations et réservations
Les aides au logement
Financement étudiant
830€ CC