Accueil > Location T2 > Waldighofen (68640) > 640 €CC

Logement étudiant à Waldighofen

Calculer vos aides

Location T2 à Waldighofen - Vide

640€ /mois cc
Ajouter au coup de coeur

Type de location : Location classique - Meublé : NonCalculez votre aide

Disponibilités : 25/03/2026
Disponibilités : 25/03/2026
Visite virtuelle
Logement étudiant T2 à Waldighofen (68640) 1/2
Disponibilités : 25/03/2026
Afficher le numéro de téléphone
Demande d'informations

Demande d'informations

Délai de réponse moyen: 24-48h

Je n'ai pas de garant
Recevoir les annonces similaires par email

Informations et réservations

Délai de réponse moyen: 24-48h

Je n'ai pas de garant
Recevoir les annonces similaires par email

LE LOGEMENT

Type de réservation:Location classique
Type de bien:T2
Ameublement:Vide
Classe énergétique:NC
GES:NC
Colocation possible:Non

DESCRIPTION

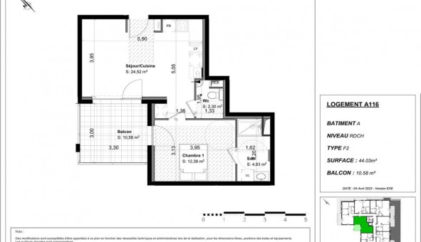
A WALDIGHOFEN, dans un environnement calme, nous vous proposons dans la résidence neuve LA ROSELLE, un appartement T2 N°A116 de m². Situé en rez-de-chaussée, il comprend un séjour de m² avec cuisine ouverte donnant sur un balcon de m², une chambre de m², une salle d'eau et un WC séparé. En extérieur, une place de parking complète le tout. Chauffage et eau chaude individuels gaz. Eau froide, entretien parties communes, ascenseur et espaces verts communs, compris dans les provisions sur charges mensuelles et donnant lieu à une régularisation annuelle. Les honoraires de location TTC (à la charge du locataire) incluent le montant de rédaction des états des lieux facturé pour 133 euros TTC, après réalisation lors de l'entrée dans les lieux. Plus de détails sur notre site internet AFEDIM.
Les informations sur les risques auxquels ce bien est exposé sont disponibles sur le site Géorisques :
Référence annonce : 1427239430

GARANTIES ACCEPTÉES
Visale
Garantie Studapart
Garant physique
ALERTE MAIL
Définissez la location que vous recherchez et nous vous enverrons par email toutes les annonces correspondantes
QUARTIER ET TRANSPORTS (Attention: l'adresse et le quartier de ce bien n'ont pas été communiqués par l'annonceur)
POUR VOUS AIDER
Trouvez la CAF à Waldighofen
Résidences étudiantes à Waldighofen
Trouvez un job à proximité
Financez votre logement
Découvrir Waldighofen
A quelles aides avez-vous droit ?
Simulation APL
Signaler un probleme
BIENS SIMILAIRES
Logement étudiant Location T3 Vide Feldbach (68640) Location T3 Vide Feldbach (68640) A partir de 685€
Logement étudiant Location Studio Vide Feldbach (68640) Location Studio Vide Feldbach (68640) A partir de 395€
Logement étudiant Location T3 Vide Feldbach (68640) Location T3 Vide Feldbach (68640) A partir de 700€
Besoin d'un logement à Waldighofen ?
Demande d'informations et réservations
Les aides au logement
Financement étudiant
640€ CC