Accueil > Location T2 > Villers lès Nancy (54600) > 509 €CC

Logement étudiant à Villers lès Nancy

Calculer vos aides

Location T2 à Villers lès Nancy - Vide

509€ /mois cc
Ajouter au coup de coeur

Type de location : Location classique - Meublé : NonCalculez votre aide

Disponibilités : 22/04/2026
Disponibilités : 22/04/2026
Visite virtuelle
Logement étudiant T2 à Villers lès Nancy (54600) 1/2
Disponibilités : 22/04/2026
Afficher le numéro de téléphone
Demande d'informations

Demande d'informations

Délai de réponse moyen: 24-48h

Je n'ai pas de garant
Recevoir les annonces similaires par email

Informations et réservations

Délai de réponse moyen: 24-48h

Je n'ai pas de garant
Recevoir les annonces similaires par email

LE LOGEMENT

Type de réservation:Location classique
Type de bien:T2
Ameublement:Vide
Classe énergétique:NC
GES:NC
Colocation possible:Non

DESCRIPTION

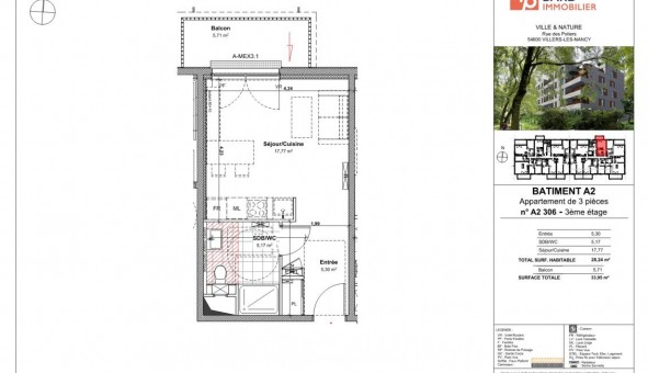
VILLIERS LES NANCY, à 15 minutes en voiture du centre-ville de Nancy et à proximité des services (transports, commerces, écoles...), c'est ici que nous vous proposons un appartement T1 d'une superficie de m² au 3ème étage avec ascenseur de la résidence neuve VILLE ET NATURE. Il se compose d'une pièce à vivre spacieuse de m² avec cuisine aménagée et équipée donnant sur un balcon de m², une salle d'eau avec douche, meuble vasque et WC. Eau chaude et chauffage collectif au gaz, eau froide, ascenseur, entretien parties communes et espaces verts communs, compris dans les provisions sur charges mensuelles et donnant lieu à une régularisation annuelle. Les honoraires de location TTC (à la charge du locataire) incluent le montant de rédaction des états des lieux facturé pour 85 euros TTC, après réalisation lors de l'entrée dans les lieux. Appartement disponible à compter du 02/05/2026. Pour plus de détails sur ce logement, vous pouvez consulter la fiche descriptive de ce bien, sur notre site internet afedim-locations
Les informations sur les risques auxquels ce bien est exposé sont disponibles sur le site Géorisques :
Référence annonce : 1427298552

GARANTIES ACCEPTÉES
Visale
Garantie Studapart
Garant physique
ALERTE MAIL
Définissez la location que vous recherchez et nous vous enverrons par email toutes les annonces correspondantes
QUARTIER ET TRANSPORTS (Attention: l'adresse et le quartier de ce bien n'ont pas été communiqués par l'annonceur)
POUR VOUS AIDER
Trouvez la CAF à Villers lès Nancy
Résidences étudiantes à Villers lès Nancy
Trouvez un job à proximité
Financez votre logement
Liste des écoles à proximité
Découvrir Villers lès Nancy
A quelles aides avez-vous droit ?
Simulation APL
Signaler un probleme
BIENS SIMILAIRES
Logement étudiant Location T2 Vide Villers lès Nancy (54600) Location T2 Vide Villers lès Nancy (54600) A partir de 490€
Logement étudiant Location T2 Vide Villers lès Nancy (54600) Location T2 Vide Villers lès Nancy (54600) A partir de 657€
Logement étudiant Location T4 Vide Villers lès Nancy (54600) Location T4 Vide Villers lès Nancy (54600) A partir de 1 100€
Besoin d'un logement à Villers lès Nancy ?
Demande d'informations et réservations
Les aides au logement
Financement étudiant
509€ CC