Accueil > Location T2 > Vernon (27200) > 680 €CC

Logement étudiant à Vernon

Calculer vos aides

Location T2 à Vernon - Vide

680€ /mois cc
Ajouter au coup de coeur

Type de location : Location classique - Meublé : NonCalculez votre aide

Disponibilités : 21/11/2025
Disponibilités : 21/11/2025
Visite virtuelle
Logement étudiant T2 à Vernon (27200) 1/2
Disponibilités : 21/11/2025
Afficher le numéro de téléphone
Demande d'informations

Demande d'informations

Délai de réponse moyen: 24-48h

Je n'ai pas de garant
Recevoir les annonces similaires par email

Informations et réservations

Délai de réponse moyen: 24-48h

Je n'ai pas de garant
Recevoir les annonces similaires par email

LE LOGEMENT

Type de réservation:Location classique
Type de bien:T2
Ameublement:Vide
Classe énergétique:NC
GES:NC
Colocation possible:Non

DESCRIPTION

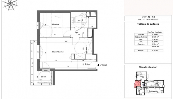
A VERNON - Dans la résidence neuve "LE 104", nous vous proposons un appartement N°207 de ² situé au 2ème étage. Il se compose d'une entrée avec placard, d'une pièce de vie de ² avec coin cuisine et donnant sur un balcon de ², d'une chambre de ² et d'une salle d'eau avec WC. Cet appartement dispose d'une place de stationnement N°39. Chauffage et eau chaude collective. Entretien parties communes, entretien ascenseur, compris dans les provisions sur charges mensuelles et donnant lieu à une régularisation annuelle. Les honoraires de location TTC (à la charge du locataire) incluent le montant de rédaction des états des lieux facturé pour 136 euros TTC, après réalisation lors de l'entrée dans les lieux. Disponible courant décembre 2025. Plus de détails sur notre site AFEDIM.
Les informations sur les risques auxquels ce bien est exposé sont disponibles sur le site Géorisques :
Référence annonce : 1426965396

BIENS SIMILAIRES
Logement étudiant Location T2 Meublé Vernon (27200) Location T2 Meublé Vernon (27200) A partir de 625€
Logement étudiant Location Duplex Meublé Vernon (27200) Location Duplex Meublé Vernon (27200) A partir de 1 485€
Logement étudiant Location T5 Vide Vernon (27200) Location T5 Vide Vernon (27200) A partir de 1 350€
GARANTIES ACCEPTÉES
Visale
Garantie Studapart
Garant physique
ALERTE MAIL
Définissez la location que vous recherchez et nous vous enverrons par email toutes les annonces correspondantes
QUARTIER ET TRANSPORTS (Attention: l'adresse et le quartier de ce bien n'ont pas été communiqués par l'annonceur)
POUR VOUS AIDER
Trouvez la CAF à Vernon
Résidences étudiantes à Vernon
Trouvez un job à proximité
Financez votre logement
Liste des écoles à proximité
Découvrir Vernon
A quelles aides avez-vous droit ?
Simulation APL
Signaler un probleme
BIENS SIMILAIRES
Logement étudiant Location T3 Vide Vernon (27200) Location T3 Vide Vernon (27200) A partir de 855€
Logement étudiant Location T3 Vide Vernon (27200) Location T3 Vide Vernon (27200) A partir de 820€
Logement étudiant Location T2 Vide Vernon (27200) Location T2 Vide Vernon (27200) A partir de 680€
Besoin d'un logement à Vernon ?
Demande d'informations et réservations
Les aides au logement
Financement étudiant
680€ CC