Accueil > Location T2 > Vandoeuvre lès Nancy (54500) > 595 €CC

Logement étudiant à Vandoeuvre lès Nancy

Calculer vos aides

Location T2 à Vandoeuvre lès Nancy - Vide

595€ /mois cc
Ajouter au coup de coeur

Type de location : Location classique - Meublé : NonCalculez votre aide

Disponibilités : 10/12/2025
Disponibilités : 10/12/2025
Visite virtuelle
Logement étudiant T2 à Vandoeuvre lès Nancy (54500) 1/2
Disponibilités : 10/12/2025
Afficher le numéro de téléphone
Demande d'informations

Demande d'informations

Délai de réponse moyen: 24-48h

Je n'ai pas de garant
Recevoir les annonces similaires par email

Informations et réservations

Délai de réponse moyen: 24-48h

Je n'ai pas de garant
Recevoir les annonces similaires par email

LE LOGEMENT

Type de réservation:Location classique
Type de bien:T2
Ameublement:Vide
Classe énergétique:NC
GES:NC
Colocation possible:Non

DESCRIPTION

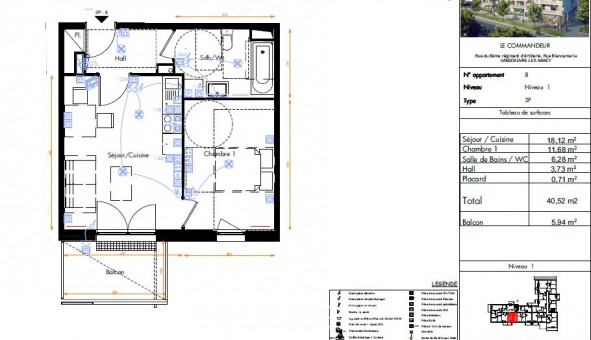
A VANDOEUVRE-LES-NANCY, deuxième plus grande ville de la communauté urbaine du Grand Nancy, ville très dynamique, avec un qualité de vie remarquable, à proximités de toutes les commodités, dans la résidence "LE COMMANDEUR", nous vous proposons un appartement de type T2 n°8 (lot 8), d'environ m², situé au 1er étage du bâtiment A, composé d'une entrée avec placard, séjour avec cuisine, donnant sur balcon de m² environ , salle de bains avec WC, chambre. Place de parking en sous-sol n°82 (lot 82). Eau et chauffage collectifs urbain, entretien parties communes, entretien ascenseur et espaces verts communs, compris dans les provisions sur charges mensuelles et donnant lieu à une régularisation annuelle. Les honoraires de location incluent le montant des honoraires de rédaction de l'état des lieux d'entrée (part locataire) facturés pour 121 euros TTC, après réalisation lors de l'entrée dans les lieux. Plus d'informations sur notre site AFEDIM.
Les informations sur les risques auxquels ce bien est exposé sont disponibles sur le site Géorisques :
Référence annonce : 1427000411

BIENS SIMILAIRES
Logement étudiant Location Studio Meublé Vandoeuvre lès Nancy (54500) Location Studio Meublé Vandoeuvre lès Nancy (54500) A partir de 500€
Logement étudiant Location T4 Meublé Vandoeuvre lès Nancy (54500) Location T4 Meublé Vandoeuvre lès Nancy (54500) A partir de 996€
Logement étudiant Location T2 Meublé Vandoeuvre lès Nancy (54500) Location T2 Meublé Vandoeuvre lès Nancy (54500) A partir de 680€
GARANTIES ACCEPTÉES
Visale
Garantie Studapart
Garant physique
ALERTE MAIL
Définissez la location que vous recherchez et nous vous enverrons par email toutes les annonces correspondantes
QUARTIER ET TRANSPORTS (Attention: l'adresse et le quartier de ce bien n'ont pas été communiqués par l'annonceur)
POUR VOUS AIDER
Trouvez la CAF à Vandoeuvre lès Nancy
Résidences étudiantes à Vandoeuvre lès Nancy
Trouvez un job à proximité
Financez votre logement
Liste des écoles à proximité
Découvrir Vandoeuvre lès Nancy
A quelles aides avez-vous droit ?
Simulation APL
Signaler un probleme
BIENS SIMILAIRES
Logement étudiant Location T2 Vide Vandoeuvre lès Nancy (54500) Location T2 Vide Vandoeuvre lès Nancy (54500) A partir de 536€
Logement étudiant Location T3 Vide Vandoeuvre lès Nancy (54500) Location T3 Vide Vandoeuvre lès Nancy (54500) A partir de 761€
Logement étudiant Location T2 Vide Vandoeuvre lès Nancy (54500) Location T2 Vide Vandoeuvre lès Nancy (54500) A partir de 550€
Besoin d'un logement à Vandoeuvre lès Nancy ?
Demande d'informations et réservations
Les aides au logement
Financement étudiant
595€ CC