Accueil > Location T2 > Trélazé (49800) > 615 €CC

Logement étudiant à Trélazé

Calculer vos aides

Location T2 à Trélazé - Vide

615€ /mois cc
Ajouter au coup de coeur

Type de location : Location classique - Meublé : NonCalculez votre aide

Disponibilités : 16/12/2025
Disponibilités : 16/12/2025
Visite virtuelle
Logement étudiant T2 à Trélazé (49800) 1/2
Disponibilités : 16/12/2025
Afficher le numéro de téléphone
Demande d'informations

Demande d'informations

Délai de réponse moyen: 24-48h

Je n'ai pas de garant
Recevoir les annonces similaires par email

Informations et réservations

Délai de réponse moyen: 24-48h

Je n'ai pas de garant
Recevoir les annonces similaires par email

LE LOGEMENT

Type de réservation:Location classique
Type de bien:T2
Ameublement:Vide
Classe énergétique:NC
GES:NC
Colocation possible:Non

DESCRIPTION

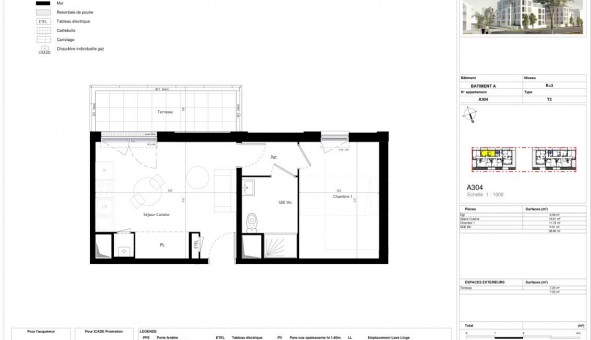
A TRELAZE, dans la résidence neuve LUCINA, nous vous proposons ce T2 de ² situé au troisième étage du bâtiment. Il se compose d'un séjour/cuisine de ² donnant sur une terrasse de ², un dégagement desservant une salle d'eau avec WC et une chambre. Eau chaude et chauffage individuels gaz. Entretien parties communes et ascenseur, compris dans les provisions sur charges mensuelles et donnant lieu à une régularisation annuelle. Les honoraires de location TTC (à la charge du locataire) incluent le montant de rédaction des états des lieux facturé pour 116 euros TTC, après réalisation lors de l'entrée dans les lieux. Disponibilité prévisionnelle courant février 2026. Plus de détails sur notre site AFEDIM. Logement neuf en cours de construction - DPE à venir
Les informations sur les risques auxquels ce bien est exposé sont disponibles sur le site Géorisques :
Référence annonce : 1427021599

BIENS SIMILAIRES
Logement étudiant Location T2 Meublé Trélazé (49800) Location T2 Meublé Trélazé (49800) A partir de 720€
Logement étudiant Location Studio Meublé Trélazé (49800) Location Studio Meublé Trélazé (49800) A partir de 400€
Logement étudiant Location T3 Meublé Andard (49800) Location T3 Meublé Andard (49800) A partir de 430€
GARANTIES ACCEPTÉES
Visale
Garantie Studapart
Garant physique
ALERTE MAIL
Définissez la location que vous recherchez et nous vous enverrons par email toutes les annonces correspondantes
QUARTIER ET TRANSPORTS (Attention: l'adresse et le quartier de ce bien n'ont pas été communiqués par l'annonceur)
POUR VOUS AIDER
Trouvez la CAF à Trélazé
Résidences étudiantes à Trélazé
Trouvez un job à proximité
Financez votre logement
Liste des écoles à proximité
Découvrir Trélazé
A quelles aides avez-vous droit ?
Simulation APL
Signaler un probleme
BIENS SIMILAIRES
Logement étudiant Location T2 Vide Andard (49800) Location T2 Vide Andard (49800) A partir de 680€
Logement étudiant Location Studio Vide Andard (49800) Location Studio Vide Andard (49800) A partir de 535€
Logement étudiant Location T4 Vide Andard (49800) Location T4 Vide Andard (49800) A partir de 990€
Besoin d'un logement à Trélazé ?
Demande d'informations et réservations
Les aides au logement
Financement étudiant
615€ CC