Accueil > Location T2 > Toufflers (59390) > 606 €CC

Logement étudiant à Toufflers

Calculer vos aides

Location T2 à Toufflers - Vide

606€ /mois cc
Ajouter au coup de coeur

Type de location : Location classique - Meublé : NonCalculez votre aide

Disponibilités : 12/12/2025
Disponibilités : 12/12/2025
Visite virtuelle
Logement étudiant T2 à Toufflers (59390) 1/2
Disponibilités : 12/12/2025
Afficher le numéro de téléphone
Demande d'informations

Demande d'informations

Délai de réponse moyen: 24-48h

Je n'ai pas de garant
Recevoir les annonces similaires par email

Informations et réservations

Délai de réponse moyen: 24-48h

Je n'ai pas de garant
Recevoir les annonces similaires par email

LE LOGEMENT

Type de réservation:Location classique
Type de bien:T2
Ameublement:Vide
Classe énergétique:NC
GES:NC
Colocation possible:Non

DESCRIPTION

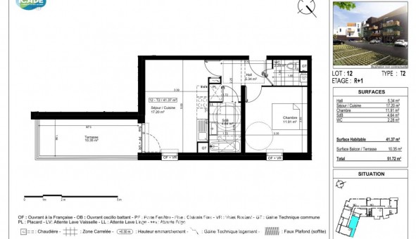
A TOUFFLERS, dans la résidence "L'INEDIT", nous vous proposons un appartement T2 n°12 de 41m², situé au 1er étage. Il comprend un hall avec placard, un séjour avec coin cuisine donnant sur une terrasse grande, une chambre, une salle de bains et un WC séparé. Cet appartement dispose d'une place de stationnement N°28. L'eau chaude et le chauffage sont individuels au gaz. Entretien parties communes et espaces verts communs, compris dans les provisions sur charges mensuelles et donnant lieu à une régularisation annuelle. Les honoraires de location TTC (à la charge du locataire) incluent le montant de rédaction des états des lieux facturé pour 124 euros TTC, après réalisation lors de l'entrée dans les lieux. Disponible le 1er août 2025. Pour plus de détails sur ce logement, vous pouvez consulter la fiche descriptive de ce bien, sur notre site internet AFEDIM.
Les informations sur les risques auxquels ce bien est exposé sont disponibles sur le site Géorisques :
Référence annonce : 1427013544

GARANTIES ACCEPTÉES
Visale
Garantie Studapart
Garant physique
ALERTE MAIL
Définissez la location que vous recherchez et nous vous enverrons par email toutes les annonces correspondantes
QUARTIER ET TRANSPORTS (Attention: l'adresse et le quartier de ce bien n'ont pas été communiqués par l'annonceur)
POUR VOUS AIDER
Trouvez la CAF à Toufflers
Résidences étudiantes à Toufflers
Trouvez un job à proximité
Financez votre logement
Découvrir Toufflers
A quelles aides avez-vous droit ?
Simulation APL
Signaler un probleme
BIENS SIMILAIRES
Logement étudiant Location T2 Vide Lys lez Lannoy (59390) Location T2 Vide Lys lez Lannoy (59390) A partir de 529€
Logement étudiant Location T2 Vide Lannoy (59390) Location T2 Vide Lannoy (59390) A partir de 684€
Logement étudiant Location T4 Vide Lannoy (59390) Location T4 Vide Lannoy (59390) A partir de 907€
Besoin d'un logement à Toufflers ?
Demande d'informations et réservations
Les aides au logement
Financement étudiant
606€ CC