Accueil > Location T2 > Strasbourg (67000) > 643 €CC

Logement étudiant à Strasbourg

Calculer vos aides

Location T2 à Strasbourg - Vide

643€ /mois cc
Ajouter au coup de coeur

Type de location : Location classique - Meublé : NonCalculez votre aide

Disponibilités : 19/03/2026
Disponibilités : 19/03/2026
Visite virtuelle
Logement étudiant T2 à Strasbourg (67000) 1/2
Disponibilités : 19/03/2026
Afficher le numéro de téléphone
Demande d'informations

Demande d'informations

Délai de réponse moyen: 24-48h

Je n'ai pas de garant
Recevoir les annonces similaires par email

Informations et réservations

Délai de réponse moyen: 24-48h

Je n'ai pas de garant
Recevoir les annonces similaires par email

LE LOGEMENT

Type de réservation:Location classique
Type de bien:T2
Ameublement:Vide
Classe énergétique:NC
GES:NC
Colocation possible:Non

DESCRIPTION

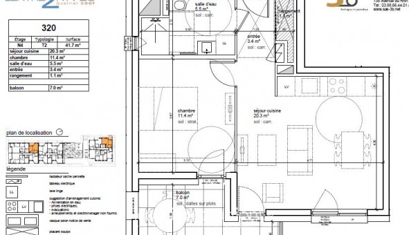
STRASBOURG, c'est ici dans la résidence L'ENTRE2RIVES que nous vous proposons un appartement T2 (n°320), d'une superficie de m² situé au 4ème étage avec ascenseur. Il se compose d'une entrée avec rangement, d'un séjour-cuisine (A/E avec four et plaque) donnant sur un balcon de 7 m² orienté ouest, d'une salle d'eau avec WC et d'une chambre de 11,40 m². Eau chaude et chauffage (collectif). Entretien parties communes, entretien ascenseur et espaces verts communs, compris dans les provisions sur charges mensuelles et donnant lieu à une régularisation annuelle. Les honoraires de location 546euros TTC (à la charge du locataire) incluent le montant de rédaction des états des lieux facturé pour 126euros TTC, après réalisation lors de l'entrée dans les lieux. Disponible le 16/04/2026. Pour plus de détails sur ce logement, vous pouvez consulter la fiche descriptive de ce bien, sur votre site internet AFEDIM.
Les informations sur les risques auxquels ce bien est exposé sont disponibles sur le site Géorisques :
Référence annonce : 1427224582

BIENS SIMILAIRES
Logement étudiant Location Studio Meublé Strasbourg (67000) Location Studio Meublé Strasbourg (67000) A partir de 1 450€
Logement étudiant Location T5 Meublé Strasbourg (67000) Location T5 Meublé Strasbourg (67000) A partir de 535€
Logement étudiant Location Studio Meublé Strasbourg (67000) Location Studio Meublé Strasbourg (67000) A partir de 600€
GARANTIES ACCEPTÉES
Visale
Garantie Studapart
Garant physique
ALERTE MAIL
Définissez la location que vous recherchez et nous vous enverrons par email toutes les annonces correspondantes
QUARTIER ET TRANSPORTS (Attention: l'adresse et le quartier de ce bien n'ont pas été communiqués par l'annonceur)
POUR VOUS AIDER
Trouvez la CAF à Strasbourg
Résidences étudiantes à Strasbourg
Trouvez un job à proximité
Financez votre logement
Liste des écoles à proximité
Découvrir Strasbourg
A quelles aides avez-vous droit ?
Simulation APL
Signaler un probleme
BIENS SIMILAIRES
Logement étudiant Location Studio Vide Strasbourg (67000) Location Studio Vide Strasbourg (67000) A partir de 780€
Logement étudiant Location T3 Vide Strasbourg (67000) Location T3 Vide Strasbourg (67000) A partir de 1 500€
Logement étudiant Location T2 Vide Strasbourg (67000) Location T2 Vide Strasbourg (67000) A partir de 660€
Besoin d'un logement à Strasbourg ?
Demande d'informations et réservations
Les aides au logement
Financement étudiant
643€ CC