Accueil > Location T2 > Strasbourg (67000) > 562 €CC

Logement étudiant à Strasbourg

Calculer vos aides

Location T2 à Strasbourg - Vide

562€ /mois cc
Ajouter au coup de coeur

Type de location : Location classique - Meublé : NonCalculez votre aide

Disponibilités : 28/12/2025
Disponibilités : 28/12/2025
Visite virtuelle
Logement étudiant T2 à Strasbourg (67000) 1/2
Disponibilités : 28/12/2025
Afficher le numéro de téléphone
Demande d'informations

Demande d'informations

Délai de réponse moyen: 24-48h

Je n'ai pas de garant
Recevoir les annonces similaires par email

Informations et réservations

Délai de réponse moyen: 24-48h

Je n'ai pas de garant
Recevoir les annonces similaires par email

LE LOGEMENT

Type de réservation:Location classique
Type de bien:T2
Ameublement:Vide
Classe énergétique:NC
GES:NC
Colocation possible:Non

DESCRIPTION

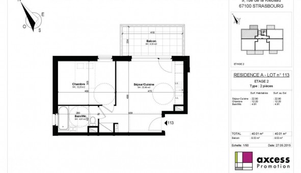
Au sud-est de STRASBOURG dans la résidence "L'AGAPE" nous vous proposons un appartement de type T2 n° 113 de 40,01 m², situé au 2ème étage avec ascenseur comprenant : une entrée, un séjour avec cuisine équipée (éléments de rangements, plaque de cuisson, four, hotte) donnant sur un balcon de 8,53 m², une chambre et une salle de bains avec WC. Au sous-sol un garage. Eau chaude et chauffage. individuels gaz. Entretien parties communes, entretien ascenseur et espaces verts communs, compris dans les provisions sur charges mensuelles et donnant lieu à une régularisation annuelle. Les honoraires de location TTC (à la charge du locataire) incluent le montant de rédaction des états des lieux facturé pour 120 euros TTC, après réalisation lors de l'entrée dans les lieux. Pour plus de détails sur ce logement, vous pouvez consulter la fiche descriptive de ce bien, sur votre site internet AFEDIM
Les informations sur les risques auxquels ce bien est exposé sont disponibles sur le site Géorisques :
Référence annonce : 1427048444

BIENS SIMILAIRES
Logement étudiant Location Studio Meublé Strasbourg (67000) Location Studio Meublé Strasbourg (67000) A partir de 575€
Logement étudiant Location T2 Meublé Strasbourg (67000) Location T2 Meublé Strasbourg (67000) A partir de 1 200€
Logement étudiant Location Studio Meublé Strasbourg (67000) Location Studio Meublé Strasbourg (67000) A partir de 700€
GARANTIES ACCEPTÉES
Visale
Garantie Studapart
Garant physique
ALERTE MAIL
Définissez la location que vous recherchez et nous vous enverrons par email toutes les annonces correspondantes
QUARTIER ET TRANSPORTS (Attention: l'adresse et le quartier de ce bien n'ont pas été communiqués par l'annonceur)
POUR VOUS AIDER
Trouvez la CAF à Strasbourg
Résidences étudiantes à Strasbourg
Trouvez un job à proximité
Financez votre logement
Liste des écoles à proximité
Découvrir Strasbourg
A quelles aides avez-vous droit ?
Simulation APL
Signaler un probleme
BIENS SIMILAIRES
Logement étudiant Location T2 Vide Strasbourg (67000) Location T2 Vide Strasbourg (67000) A partir de 935€
Logement étudiant Location T4 Vide Strasbourg (67000) Location T4 Vide Strasbourg (67000) A partir de 2 415€
Logement étudiant Location T2 Vide Strasbourg (67000) Location T2 Vide Strasbourg (67000) A partir de 823€
Besoin d'un logement à Strasbourg ?
Demande d'informations et réservations
Les aides au logement
Financement étudiant
562€ CC