Accueil > Location T2 > Saran (45770) > 609 €CC

Logement étudiant à Saran

Calculer vos aides

Location T2 à Saran - Vide

609€ /mois cc
Ajouter au coup de coeur

Type de location : Location classique - Meublé : NonCalculez votre aide

Disponibilités : 11/12/2025
Disponibilités : 11/12/2025
Visite virtuelle
Logement étudiant T2 à Saran (45770) 1/2
Disponibilités : 11/12/2025
Afficher le numéro de téléphone
Demande d'informations

Demande d'informations

Délai de réponse moyen: 24-48h

Je n'ai pas de garant
Recevoir les annonces similaires par email

Informations et réservations

Délai de réponse moyen: 24-48h

Je n'ai pas de garant
Recevoir les annonces similaires par email

LE LOGEMENT

Type de réservation:Location classique
Type de bien:T2
Ameublement:Vide
Classe énergétique:NC
GES:NC
Colocation possible:Non

DESCRIPTION

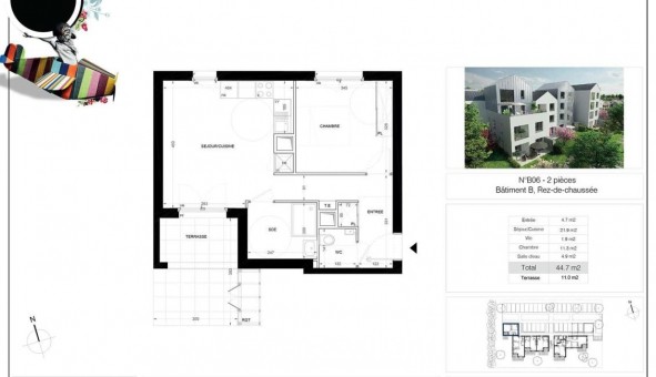
A SARAN, dans la résidence neuve LES HELYS, nous vous proposons un logement T2 N° B06 de m² situé en rez-de-chaussée. Il se compose d'une entrée avec placard, une pièce de vie de m² avec cuisine ouverte sur séjour et donnant sur une terrasse de 11 m², une chambre de m² avec placard, une salle d'eau et un WC séparé. Un parking extérieur N°211 complète le bien. Eau froide individuelle. Chauffage et eau chaude en individuel gaz, entretien des parties communes et espaces verts communs, compris dans les provisions sur charges mensuelles et donnant lieu à une régularisation annuelle. Les honoraires de location TTC (à la charge du locataire) incluent le montant de rédaction des états des lieux facturé pour 134 euros TTC, après réalisation lors de l'entrée dans les lieux. Disponibilité le 15/11/205. Plus de détails sur ce logement sur notre site internet Afedim.
Les informations sur les risques auxquels ce bien est exposé sont disponibles sur le site Géorisques :
Référence annonce : 1427010737

GARANTIES ACCEPTÉES
Visale
Garantie Studapart
Garant physique
ALERTE MAIL
Définissez la location que vous recherchez et nous vous enverrons par email toutes les annonces correspondantes
QUARTIER ET TRANSPORTS (Attention: l'adresse et le quartier de ce bien n'ont pas été communiqués par l'annonceur)
POUR VOUS AIDER
Trouvez la CAF à Saran
Résidences étudiantes à Saran
Trouvez un job à proximité
Financez votre logement
Liste des écoles à proximité
Découvrir Saran
A quelles aides avez-vous droit ?
Simulation APL
Signaler un probleme
BIENS SIMILAIRES
Logement étudiant Location T3 Vide Saran (45770) Location T3 Vide Saran (45770) A partir de 742€
Logement étudiant Location T2 Vide Saran (45770) Location T2 Vide Saran (45770) A partir de 590€
Logement étudiant Location T2 Vide Saran (45770) Location T2 Vide Saran (45770) A partir de 623€
Besoin d'un logement à Saran ?
Demande d'informations et réservations
Les aides au logement
Financement étudiant
609€ CC