Accueil > Location T2 > Sallanches (74700) > 707 €CC

Logement étudiant à Sallanches

Calculer vos aides

Location T2 à Sallanches - Vide

707€ /mois cc
Ajouter au coup de coeur

Type de location : Location classique - Meublé : NonCalculez votre aide

Disponibilités : 08/03/2026
Disponibilités : 08/03/2026
Visite virtuelle
Logement étudiant T2 à Sallanches (74700) 1/2
Disponibilités : 08/03/2026
Afficher le numéro de téléphone
Demande d'informations

Demande d'informations

Délai de réponse moyen: 24-48h

Je n'ai pas de garant
Recevoir les annonces similaires par email

Informations et réservations

Délai de réponse moyen: 24-48h

Je n'ai pas de garant
Recevoir les annonces similaires par email

LE LOGEMENT

Type de réservation:Location classique
Type de bien:T2
Ameublement:Vide
Classe énergétique:NC
GES:NC
Colocation possible:Non

DESCRIPTION

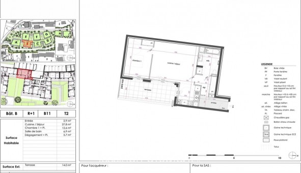
A SALLANCHES, nous vous proposons dans la résidence LES HAUTS DE LA COLLEGIALE, un appartement T2 de ². Situé au 1e étage du bâtiment B, il comprend une entrée, un séjour de ², une cuisine ouverte donnant sur une terrasse de 14m², une chambre avec placard de ², une salle de bain avec WC. Chauffage et eau chaude individuels gaz. En extérieur, un emplacement de stationnement n°261 et au 1er étage, un cellier n°7. Entretien parties communes, entretien ascenseur et espaces verts communs, compris dans les provisions sur charges mensuelles et donnant lieu à une régularisation annuelle. Les honoraires de location TTC (à la charge du locataire) incluent le montant de rédaction des états des lieux facturé pour 167 euros TTC, après réalisation lors de l'entrée dans les lieux. Disponible le 08/01/2026. Pour plus de détails sur ce logement, vous pouvez consulter la fiche descriptive de ce bien, sur votre site internet AFEDIM
Les informations sur les risques auxquels ce bien est exposé sont disponibles sur le site Géorisques :
Référence annonce : 1427201343

GARANTIES ACCEPTÉES
Visale
Garantie Studapart
Garant physique
ALERTE MAIL
Définissez la location que vous recherchez et nous vous enverrons par email toutes les annonces correspondantes
QUARTIER ET TRANSPORTS (Attention: l'adresse et le quartier de ce bien n'ont pas été communiqués par l'annonceur)
POUR VOUS AIDER
Trouvez la CAF à Sallanches
Résidences étudiantes à Sallanches
Trouvez un job à proximité
Financez votre logement
Liste des écoles à proximité
Découvrir Sallanches
A quelles aides avez-vous droit ?
Simulation APL
Signaler un probleme
BIENS SIMILAIRES
Logement étudiant Location T3 Vide Cordon (74700) Location T3 Vide Cordon (74700) A partir de 650€
Logement étudiant Location T2 Vide Cordon (74700) Location T2 Vide Cordon (74700) A partir de 700€
Logement étudiant Location T2 Vide Sallanches (74700) Location T2 Vide Sallanches (74700) A partir de 523€
Besoin d'un logement à Sallanches ?
Demande d'informations et réservations
Les aides au logement
Financement étudiant
707€ CC