Accueil > Location T2 > Saint Priest (69800) > 673 €CC

Logement étudiant à Saint Priest

Calculer vos aides

Location T2 à Saint Priest - Vide

673€ /mois cc
Ajouter au coup de coeur

Type de location : Location classique - Meublé : NonCalculez votre aide

Disponibilités : 24/04/2026
Disponibilités : 24/04/2026
Visite virtuelle
Logement étudiant T2 à Saint Priest (69800) 1/2
Disponibilités : 24/04/2026
Afficher le numéro de téléphone
Demande d'informations

Demande d'informations

Délai de réponse moyen: 24-48h

Je n'ai pas de garant
Recevoir les annonces similaires par email

Informations et réservations

Délai de réponse moyen: 24-48h

Je n'ai pas de garant
Recevoir les annonces similaires par email

LE LOGEMENT

Type de réservation:Location classique
Type de bien:T2
Ameublement:Vide
Classe énergétique:NC
GES:NC
Colocation possible:Non

DESCRIPTION

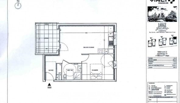
A SAINT-PRIEST, dans la Résidence LODGE GARDEN, nous vous proposons un appartement T2 n°LD23 de ² au 2ème étage. Il se compose d'une entrée, d'une pièce de vie de ² avec espace cuisine équipée (hotte, table à induction, lave-vaisselle, plan de travail, meubles de rangement et réfrigérateur-congélateur) donnant sur une loggia de ², d'une chambre de ², et d'une salle d'eau de 4.4 m² avec douche et WC. Il y a aussi un garage N°G45, au sous-sol. Eau chaude et chauffage individuel gaz (entretien des chaudières collectifs inclus dans les charges). Eau froide inclus dans les charges.
Entretien parties communes, entretien ascenseur et espaces verts communs, compris dans les provisions sur charges mensuelles et donnant lieu à une régularisation annuelle.
Les honoraires de location TTC (à la charge de locataire) incluent le montant de rédaction des états des lieux facturé pour 134 euros TTC, après réalisation lors de l'entrée dans les lieux. DPE expiré, en cours de réalisation.
Pour plus de détails sur ce logement, vous pouvez consulter la fiche descriptive de ce bien, sur notre site internet AFEDIM.
Les informations sur les risques auxquels ce bien est exposé sont disponibles sur le site Géorisques :
Référence annonce : 1427304239

GARANTIES ACCEPTÉES
Visale
Garantie Studapart
Garant physique
ALERTE MAIL
Définissez la location que vous recherchez et nous vous enverrons par email toutes les annonces correspondantes
QUARTIER ET TRANSPORTS (Attention: l'adresse et le quartier de ce bien n'ont pas été communiqués par l'annonceur)
POUR VOUS AIDER
Trouvez la CAF à Saint Priest
Résidences étudiantes à Saint Priest
Trouvez un job à proximité
Financez votre logement
Liste des écoles à proximité
Découvrir Saint Priest
A quelles aides avez-vous droit ?
Simulation APL
Signaler un probleme
BIENS SIMILAIRES
Logement étudiant Location T4 Vide Saint Priest (69800) Location T4 Vide Saint Priest (69800) A partir de 1 410€
Logement étudiant Location T4 Vide Saint Priest (69800) Location T4 Vide Saint Priest (69800) A partir de 1 250€
Logement étudiant Location T3 Vide Saint Priest (69800) Location T3 Vide Saint Priest (69800) A partir de 1 160€
Besoin d'un logement à Saint Priest ?
Demande d'informations et réservations
Les aides au logement
Financement étudiant
673€ CC