Accueil > Location T2 > Saint Nazaire (44600) > 539 €CC

Logement étudiant à Saint Nazaire

Calculer vos aides

Location T2 à Saint Nazaire - Vide

539€ /mois cc
Ajouter au coup de coeur

Type de location : Location classique - Meublé : NonCalculez votre aide

Disponibilités : 30/04/2026
Disponibilités : 30/04/2026
Visite virtuelle
Logement étudiant T2 à Saint Nazaire (44600) 1/2
Disponibilités : 30/04/2026
Afficher le numéro de téléphone
Demande d'informations

Demande d'informations

Délai de réponse moyen: 24-48h

Je n'ai pas de garant
Recevoir les annonces similaires par email

Informations et réservations

Délai de réponse moyen: 24-48h

Je n'ai pas de garant
Recevoir les annonces similaires par email

LE LOGEMENT

Type de réservation:Location classique
Type de bien:T2
Ameublement:Vide
Classe énergétique:NC
GES:NC
Colocation possible:Non

DESCRIPTION

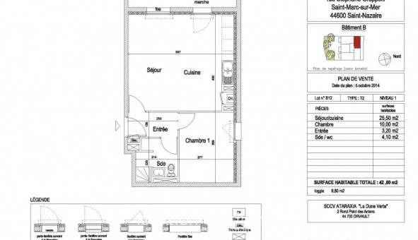
SAINT-NAZAIRE - Dans la résidence LA DUNE VERTE, nous vous proposons un appartement de type T2 n°B12 de 42.8 m². Situé au 1er étage du bâtiment B, il comprend : une entrée de 3.2 m², un séjour de 25.5 m² avec cuisine ouverte donnant sur une loggia de 6.8 m², une chambre de 10 m² avec parquet, une salle d'eau de m² avec WC.
Au rez-de-chaussée, un garage n°G01 est à votre disposition.
Eau froide individuelle. Eau chaude et chauffage individuels au gaz.
Entretien parties communes et espaces verts communs, compris dans les provisions sur charges mensuelles et donnant lieu à une régularisation annuelle.
Les honoraires de location 560 ? TTC (à la charge du locataire) incluent le montant de rédaction des états des lieux facturé pour 129 ? TTC, après réalisation lors de l'entrée dans les lieux. Plus de détails sur notre site AFEDIM
Les informations sur les risques auxquels ce bien est exposé sont disponibles sur le site Géorisques :
Référence annonce : 1427317111

BIENS SIMILAIRES
Logement étudiant Location Studio Meublé Saint Nazaire (44600) Location Studio Meublé Saint Nazaire (44600) A partir de 520€
Logement étudiant Location T3 Meublé Saint Nazaire (44600) Location T3 Meublé Saint Nazaire (44600) A partir de 900€
Logement étudiant Location T3 Meublé Saint Nazaire (44600) Location T3 Meublé Saint Nazaire (44600) A partir de 1 790€
GARANTIES ACCEPTÉES
Visale
Garantie Studapart
Garant physique
ALERTE MAIL
Définissez la location que vous recherchez et nous vous enverrons par email toutes les annonces correspondantes
QUARTIER ET TRANSPORTS (Attention: l'adresse et le quartier de ce bien n'ont pas été communiqués par l'annonceur)
POUR VOUS AIDER
Trouvez la CAF à Saint Nazaire
Résidences étudiantes à Saint Nazaire
Trouvez un job à proximité
Financez votre logement
Liste des écoles à proximité
Découvrir Saint Nazaire
A quelles aides avez-vous droit ?
Simulation APL
Signaler un probleme
BIENS SIMILAIRES
Logement étudiant Location T2 Vide Saint Nazaire (44600) Location T2 Vide Saint Nazaire (44600) A partir de 506€
Logement étudiant Location T2 Vide Saint Nazaire (44600) Location T2 Vide Saint Nazaire (44600) A partir de 670€
Logement étudiant Location Studio Vide Saint Nazaire (44600) Location Studio Vide Saint Nazaire (44600) A partir de 400€
Besoin d'un logement à Saint Nazaire ?
Demande d'informations et réservations
Les aides au logement
Financement étudiant
539€ CC