Accueil > Location T2 > Saint Nazaire (44600) > 513 €CC

Logement étudiant à Saint Nazaire

Calculer vos aides

Location T2 à Saint Nazaire - Vide

513€ /mois cc
Ajouter au coup de coeur

Type de location : Location classique - Meublé : NonCalculez votre aide

Disponibilités : 18/12/2025
Disponibilités : 18/12/2025
Visite virtuelle
Logement étudiant T2 à Saint Nazaire (44600) 1/2
Disponibilités : 18/12/2025
Afficher le numéro de téléphone
Demande d'informations

Demande d'informations

Délai de réponse moyen: 24-48h

Je n'ai pas de garant
Recevoir les annonces similaires par email

Informations et réservations

Délai de réponse moyen: 24-48h

Je n'ai pas de garant
Recevoir les annonces similaires par email

LE LOGEMENT

Type de réservation:Location classique
Type de bien:T2
Ameublement:Vide
Classe énergétique:NC
GES:NC
Colocation possible:Non

DESCRIPTION

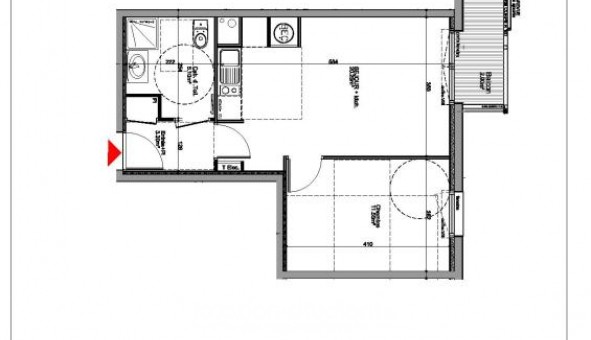
Située à Saint Nazaire, dans la résidence SIRIUS, nous vous proposons un appartement T2 de m² au 2ème étage du bâtiment A avec ascenseur. Il comprend une entrée avec placard, un séjour avec coin cuisine, une chambre, une salle d'eau avec WC. Un balcon de 2,90 m² et une place de parking extérieure n° PKA11 (lot 97) complètent le lot. Chauffage et eau chaude individuels électrique. Eau froide individuelle. Entretien parties communes, espaces verts communs, compris dans les provisions sur charges mensuelles et donnant lieu à une régularisation annuelle. Les honoraires de location TTC (à la charge du locataire) incluent le montant de rédaction des états des lieux facturé pour 120euros TTC, après réalisation lors de l'entrée dans les lieux. Disponibilité prévisionnelle au 04/12/2025. Pour plus de détails sur ce logement, vous pouvez consulter la fiche descriptive de ce bien, sur notre site internet Afedim
Les informations sur les risques auxquels ce bien est exposé sont disponibles sur le site Géorisques :
Référence annonce : 1427026352

BIENS SIMILAIRES
Logement étudiant Location T2 Meublé Saint Nazaire (44600) Location T2 Meublé Saint Nazaire (44600) A partir de 810€
Logement étudiant Location T3 Meublé Saint Nazaire (44600) Location T3 Meublé Saint Nazaire (44600) A partir de 1 300€
Logement étudiant Location T4 Meublé Saint Nazaire (44600) Location T4 Meublé Saint Nazaire (44600) A partir de 1 200€
GARANTIES ACCEPTÉES
Visale
Garantie Studapart
Garant physique
ALERTE MAIL
Définissez la location que vous recherchez et nous vous enverrons par email toutes les annonces correspondantes
QUARTIER ET TRANSPORTS (Attention: l'adresse et le quartier de ce bien n'ont pas été communiqués par l'annonceur)
POUR VOUS AIDER
Trouvez la CAF à Saint Nazaire
Résidences étudiantes à Saint Nazaire
Trouvez un job à proximité
Financez votre logement
Liste des écoles à proximité
Découvrir Saint Nazaire
A quelles aides avez-vous droit ?
Simulation APL
Signaler un probleme
BIENS SIMILAIRES
Logement étudiant Location T2 Vide Saint Nazaire (44600) Location T2 Vide Saint Nazaire (44600) A partir de 511€
Logement étudiant Location T3 Vide Saint Nazaire (44600) Location T3 Vide Saint Nazaire (44600) A partir de 716€
Logement étudiant Location T5 Vide Saint Nazaire (44600) Location T5 Vide Saint Nazaire (44600) A partir de 1 400€
Besoin d'un logement à Saint Nazaire ?
Demande d'informations et réservations
Les aides au logement
Financement étudiant
513€ CC