Accueil > Location T2 > Saint Malo (35400) > 620 €CC

Logement étudiant à Saint Malo

Calculer vos aides

Location T2 à Saint Malo - Vide

620€ /mois cc
Ajouter au coup de coeur

Type de location : Location classique - Meublé : NonCalculez votre aide

Disponibilités : 04/03/2026
Disponibilités : 04/03/2026
Visite virtuelle
Logement étudiant T2 à Saint Malo (35400) 1/2
Disponibilités : 04/03/2026
Afficher le numéro de téléphone
Demande d'informations

Demande d'informations

Délai de réponse moyen: 24-48h

Je n'ai pas de garant
Recevoir les annonces similaires par email

Informations et réservations

Délai de réponse moyen: 24-48h

Je n'ai pas de garant
Recevoir les annonces similaires par email

LE LOGEMENT

Type de réservation:Location classique
Type de bien:T2
Ameublement:Vide
Classe énergétique:NC
GES:NC
Colocation possible:Non

DESCRIPTION

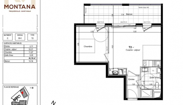
SAINT-MALO - QUARTIER HIPPODROME Rue des antilles - Libre à partir du 23 mars 2026, T2 de m² avec stationnement, situé au premier étage d'une résidence neuve avec ascenseur. Entrée, séjour avec coin cuisine aménagée et équipée (petit réfrigérateur, micro-ondes, hotte, plaques 2 feux, évier). Balcon exposé Nord-Ouest. Chambre, salle d'eau/wc (avec emplacement lave-linge). Logement soumis à la Loi Pinel, merci de vérifier votre éligibilité sur (revenu fiscal de référence N-2) - Loyer: 580 euros; prov sur charges de copropriété: 40 euros. Dépôt de garantie: 580 euros. Honoraires charge locataire: environ 580 euros dont 126 euros de frais d'huissier pour état des lieux d'entrée.
Référence annonce : 1427189553

GARANTIES ACCEPTÉES
Visale
Garantie Studapart
Garant physique
ALERTE MAIL
Définissez la location que vous recherchez et nous vous enverrons par email toutes les annonces correspondantes
QUARTIER ET TRANSPORTS (Attention: l'adresse et le quartier de ce bien n'ont pas été communiqués par l'annonceur)
POUR VOUS AIDER
Trouvez la CAF à Saint Malo
Résidences étudiantes à Saint Malo
Trouvez un job à proximité
Financez votre logement
Liste des écoles à proximité
Découvrir Saint Malo
A quelles aides avez-vous droit ?
Simulation APL
Signaler un probleme
BIENS SIMILAIRES
Logement étudiant Location T3 Vide Saint Malo (35400) Location T3 Vide Saint Malo (35400) A partir de 1 060€
Logement étudiant Location T3 Vide Saint Malo (35400) Location T3 Vide Saint Malo (35400) A partir de 924€
Logement étudiant Location T2 Vide Saint Malo (35400) Location T2 Vide Saint Malo (35400) A partir de 750€
Besoin d'un logement à Saint Malo ?
Demande d'informations et réservations
Les aides au logement
Financement étudiant
620€ CC