Accueil > Location T2 > Saint Julien lès Metz (57070) > 383 €CC

Logement étudiant à Saint Julien lès Metz

Calculer vos aides

Location T2 à Saint Julien lès Metz - Vide

383€ /mois cc
Ajouter au coup de coeur

Type de location : Location classique - Meublé : NonCalculez votre aide

Disponibilités : 20/04/2026
Disponibilités : 20/04/2026
Visite virtuelle
Logement étudiant T2 à Saint Julien lès Metz (57070) 1/2
Disponibilités : 20/04/2026
Afficher le numéro de téléphone
Demande d'informations

Demande d'informations

Délai de réponse moyen: 24-48h

Je n'ai pas de garant
Recevoir les annonces similaires par email

Informations et réservations

Délai de réponse moyen: 24-48h

Je n'ai pas de garant
Recevoir les annonces similaires par email

LE LOGEMENT

Type de réservation:Location classique
Type de bien:T2
Ameublement:Vide
Classe énergétique:NC
GES:NC
Colocation possible:Non

DESCRIPTION

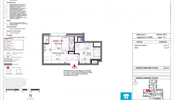
A METZ, dans la résidence L'OLYMPE, nous vous proposons un logement T1 N°01A303 de m² au 3ème étage avec ascenseur. Il se compose, d'une pièce de vie de m² avec cuisine ouverte sur séjour, une salle d'eau et WC de 6.2 m². Eau chaude et chauffage (individuel). Entretien parties communes, entretien ascenseur et espaces verts communs, compris dans les provisions sur charges mensuelles et donnant lieu à une régularisation annuelle. Les honoraires de location 213euros TTC (à la charge du locataire) incluent le montant de rédaction des états des lieux facturé pour 58euros TTC, après réalisation lors de l'entrée dans les lieux. Disponible le 13/06/2026. Pour plus de détails sur ce logement, vous pouvez consulter la fiche descriptive de ce bien, sur votre site internet AFEDIM.
Les informations sur les risques auxquels ce bien est exposé sont disponibles sur le site Géorisques :
Référence annonce : 1427291547

BIENS SIMILAIRES
Logement étudiant Location T4 Meublé Chieulles (57070) Location T4 Meublé Chieulles (57070) A partir de 1 350€
Logement étudiant Location T3 Meublé Chieulles (57070) Location T3 Meublé Chieulles (57070) A partir de 1 350€
Logement étudiant Location T3 Meublé Chieulles (57070) Location T3 Meublé Chieulles (57070) A partir de 1 350€
GARANTIES ACCEPTÉES
Visale
Garantie Studapart
Garant physique
ALERTE MAIL
Définissez la location que vous recherchez et nous vous enverrons par email toutes les annonces correspondantes
QUARTIER ET TRANSPORTS (Attention: l'adresse et le quartier de ce bien n'ont pas été communiqués par l'annonceur)
POUR VOUS AIDER
Trouvez la CAF à Saint Julien lès Metz
Résidences étudiantes à Saint Julien lès Metz
Trouvez un job à proximité
Financez votre logement
Découvrir Saint Julien lès Metz
A quelles aides avez-vous droit ?
Simulation APL
Signaler un probleme
BIENS SIMILAIRES
Logement étudiant Location T1 Vide Chieulles (57070) Location T1 Vide Chieulles (57070) A partir de 2 054€
Logement étudiant Location T2 Vide Chieulles (57070) Location T2 Vide Chieulles (57070) A partir de 690€
Logement étudiant Location T4 Vide Chieulles (57070) Location T4 Vide Chieulles (57070) A partir de 1 090€
Besoin d'un logement à Saint Julien lès Metz ?
Demande d'informations et réservations
Les aides au logement
Financement étudiant
383€ CC