Accueil > Location T2 > Saint Bernard (01600) > 740 €CC

Logement étudiant à Saint Bernard

Calculer vos aides

Location T2 à Saint Bernard - Vide

740€ /mois cc
Ajouter au coup de coeur

Type de location : Location classique - Meublé : NonCalculez votre aide

Disponibilités : 02/01/2026
Disponibilités : 02/01/2026
Visite virtuelle
Logement étudiant T2 à Saint Bernard (01600) 1/2
Disponibilités : 02/01/2026
Afficher le numéro de téléphone
Demande d'informations

Demande d'informations

Délai de réponse moyen: 24-48h

Je n'ai pas de garant
Recevoir les annonces similaires par email

Informations et réservations

Délai de réponse moyen: 24-48h

Je n'ai pas de garant
Recevoir les annonces similaires par email

LE LOGEMENT

Type de réservation:Location classique
Type de bien:T2
Ameublement:Vide
Classe énergétique:NC
GES:NC
Colocation possible:Non

DESCRIPTION

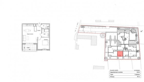
A ST BERNARD dans la résidence neuve JARDINS SECRETS, nous vous proposons un appartement de type T2 n° B24 de m². Situé au 2ème étage avec ascenseur. Il comprend : un séjour-cuisine aménagée et équipée (plaque de cuisson - hotte) de 21,6 m² donnant sur une loggia de m², une chambre de m², une salle d'eau de m² et un WC séparé. Au sous-sol un garage n° G15. Eau chaude et chauffage individuel gaz. Eau froide individuel. Entretien parties communes, entretien chaudière individuelle, entretien ascenseur et espaces verts communs, compris dans les provisions sur charges mensuelles et donnant lieu à une régularisation annuelle. Les honoraires de location incluent le montant de rédaction des états des lieux facturé pour euros TTC, après réalisation lors de l'entrée dans les lieux.
Pour plus de détails sur ce logement, vous pouvez consulter la fiche descriptive de ce bien, sur notre site internet AFEDIM. DPE à venir
Les informations sur les risques auxquels ce bien est exposé sont disponibles sur le site Géorisques :
Référence annonce : 1427048300

BIENS SIMILAIRES
Logement étudiant Location Studio Meublé Parcieux (01600) Location Studio Meublé Parcieux (01600) A partir de 2 300€
Logement étudiant Location Studio Meublé Parcieux (01600) Location Studio Meublé Parcieux (01600) A partir de 1 100€
Logement étudiant Location T4 Meublé Parcieux (01600) Location T4 Meublé Parcieux (01600) A partir de 15 000€
GARANTIES ACCEPTÉES
Visale
Garantie Studapart
Garant physique
ALERTE MAIL
Définissez la location que vous recherchez et nous vous enverrons par email toutes les annonces correspondantes
QUARTIER ET TRANSPORTS (Attention: l'adresse et le quartier de ce bien n'ont pas été communiqués par l'annonceur)
POUR VOUS AIDER
Trouvez la CAF à Saint Bernard
Résidences étudiantes à Saint Bernard
Trouvez un job à proximité
Financez votre logement
Découvrir Saint Bernard
A quelles aides avez-vous droit ?
Simulation APL
Signaler un probleme
BIENS SIMILAIRES
Logement étudiant Location Studio Vide Parcieux (01600) Location Studio Vide Parcieux (01600) A partir de 800€
Logement étudiant Location T2 Vide Massieux (01600) Location T2 Vide Massieux (01600) A partir de 650€
Logement étudiant Location T3 Vide Massieux (01600) Location T3 Vide Massieux (01600) A partir de 813€
Besoin d'un logement à Saint Bernard ?
Demande d'informations et réservations
Les aides au logement
Financement étudiant
740€ CC