Accueil > Location T2 > Saint Benoît (86280) > 469 €CC

Logement étudiant à Saint Benoît

Calculer vos aides

Location T2 à Saint Benoît - Vide

469€ /mois cc
Ajouter au coup de coeur

Type de location : Location classique - Meublé : NonCalculez votre aide

Disponibilités : 02/04/2026
Disponibilités : 02/04/2026
Visite virtuelle
Logement étudiant T2 à Saint Benoît (86280) 1/2
Disponibilités : 02/04/2026
Afficher le numéro de téléphone
Demande d'informations

Demande d'informations

Délai de réponse moyen: 24-48h

Je n'ai pas de garant
Recevoir les annonces similaires par email

Informations et réservations

Délai de réponse moyen: 24-48h

Je n'ai pas de garant
Recevoir les annonces similaires par email

LE LOGEMENT

Type de réservation:Location classique
Type de bien:T2
Ameublement:Vide
Classe énergétique:NC
GES:NC
Colocation possible:Non

DESCRIPTION

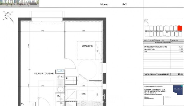
SAINT-BENOIT, proche Poitiers, services et FAC de médecine, appartement T2 n°B205 de 40,45 m² situé au 2ème étage avec ascenseur du bâtiment B, résidence LES ALLEES CALYPSO. Il se compose d'un séjour-cuisine de 22,55 m² avec cuisine aménagée-équipée (plaque/hotte), d'une salle d'eau avec WC et d'une chambre. Eau chaude et chauffage individuel au gaz. Eau froide individuelle. Entretien ascenseur, entretien parties communes et espaces verts communs, compris dans les provisions sur charges mensuelles et donnant lieu à une régularisation annuelle. Les honoraires de location TTC (à la charge du locataire) incluent le montant de rédaction des états des lieux facturé pour 121,00 euros TTC, après réalisation lors de l'entrée dans les lieux. Disponibilité au 30/05/2026. Pour plus d'informations consulter notre site internet AFEDIM.
Les informations sur les risques auxquels ce bien est exposé sont disponibles sur le site Géorisques :
Référence annonce : 1427256572

GARANTIES ACCEPTÉES
Visale
Garantie Studapart
Garant physique
ALERTE MAIL
Définissez la location que vous recherchez et nous vous enverrons par email toutes les annonces correspondantes
QUARTIER ET TRANSPORTS (Attention: l'adresse et le quartier de ce bien n'ont pas été communiqués par l'annonceur)
POUR VOUS AIDER
Trouvez la CAF à Saint Benoît
Résidences étudiantes à Saint Benoît
Trouvez un job à proximité
Financez votre logement
Liste des écoles à proximité
Découvrir Saint Benoît
A quelles aides avez-vous droit ?
Simulation APL
Signaler un probleme
BIENS SIMILAIRES
Logement étudiant Location T2 Vide Saint Benoît (86280) Location T2 Vide Saint Benoît (86280) A partir de 381€
Logement étudiant Location Studio Vide Saint Benoît (86280) Location Studio Vide Saint Benoît (86280) A partir de 410€
Logement étudiant Location T2 Vide Saint Benoît (86280) Location T2 Vide Saint Benoît (86280) A partir de 582€
Besoin d'un logement à Saint Benoît ?
Demande d'informations et réservations
Les aides au logement
Financement étudiant
469€ CC